Menu side
- Εξυπηρέτηση Πολιτών
- Οι Φοιτητές Μας
- Άθλητισμός
- Πολιτισμός
- Οικογένεια και Παιδί
- Καθαριότητα-Ανακύκλωση
- Κανονισμός Κοινοχρήστων Χώρων
- Οδηγίες για θέματα Πολιτικής Προστασίας
- Έλεγχος Παρόδιας Στάθμευσης
- Συγχρηματοδοτούμενα Έργα
- Διάθεση χώρων
Κανονισμός χρήσης και λειτουργίας κοινοχρήστων χώρων, πεζόδρομων – πλατειών – αστικού εξοπλισμού του Δήμου Πατρέων
Με την υπ’ αριθ. 320/2025 απόφασή του το Δημοτικό Συμβούλιο της Πάτρας έθεσε τους όρους διάθεσης
και λειτουργίας των κοινόχρηστων χώρων του Δήμου Πατρέων.
Στόχος του κανονισμού είναι η αναβάθμιση της ποιότητας ζωής των κατοίκων της πόλης, η προστασία
αλλά και η αξιοποίηση των κοινόχρηστων χώρων. Η δημιουργία μιας όμορφης, σύγχρονης και φιλόξενης
πόλης απαιτεί προσπάθειες και θυσίες έναντι του προσωπικού συμφέροντος του καθενός ξεχωριστά. Γι’
αυτό επαναπροσδιορίστηκαν οι κανόνες και οι προϋποθέσεις της παραχώρησης των κοινόχρηστων χώρων
στους επαγγελματίες με τρόπο που θα εξυπηρετούνται ταυτόχρονα η οικονομική δραστηριότητα αλλά και το
δημόσιο συμφέρον. Με την τήρηση των κανόνων αυτών, συνυπάρχουμε χωρίς αποκλεισμούς και
εξαιρέσεις, ακολουθώντας το σύγχρονο πνεύμα λειτουργίας μιας ζωντανής πόλης που σέβεται τους πολίτες
της.
Αντικείμενο του κανονισμού είναι η θέσπιση των προδιαγραφών και των κανόνων για την εύρυθμη λειτουργία και χρήση των κοινόχρηστων χώρων του Δήμου ( πλατειών, πεζοδρόμων, πεζοδρομίων, στοών κλπ.), η ασφάλεια και προστασία για την κίνηση των πεζών χωρίς εμπόδια σε όλη την επιφάνεια τους και η απρόσκοπτη χρήση τους από άτομα με αναπηρία ΑΜεΑ . Ο κανονισμός αυτός θέτει τους όρους για :
α) την ανάπτυξη τραπεζοκαθισμάτων και λοιπού εξοπλισμού των ΚΥΕ καθώς και τις προδιαγραφές αυτών
β) την κατάληψη κοινοχρήστου χώρου από εμπορεύματα, πινακίδες, περίπτερα, οικοδομικά υλικά κλπ, από όποια δραστηριότητα προκύπτει, εφόσον η κατάληψη αντιτίθεται στους κανόνες ισονομίας, αθέμιτου ανταγωνισμού, εύρυθμης λειτουργίας της πόλης, καταστρατηγώντας το δικαίωμα της ελεύθερης χρήσης των δημόσιων χώρων,
γ) την αποκατάσταση της αισθητικής εικόνας και λειτουργικότητας της πόλης,
δ) την ενδυνάμωση της εμπορικής κίνησης με την οργανωμένη παρουσία των κοινόχρηστων χώρων.
Σκοπός της κανονιστικής πράξης είναι η καθιέρωση ενός πλαισίου λειτουργίας και αισθητικής της πόλης μέσω γενικών και ειδικών κανόνων που θα διέπει την παραχώρηση και την χρήση των πάσης φύσης κοινόχρηστων χώρων και αστικού εξοπλισμού του Δήμου Πατρέων. Η παραχώρηση του δικαιώματος κατάληψης-χρήσης των κοινοχρήστων χώρων είναι δυνατή, εφόσον για τον συγκεκριμένο χώρο: α) δεν υπάρχει σχετικός περιορισμός από Πολεοδομικές ή άλλες ρυθμίσεις και β) δεν έχει εκδοθεί απόφαση του Δημοτικού Συμβουλίου με την οποία για ειδικούς λόγους δεν επιτρέπεται η κατάληψη.
Το καθοριζόμενο πλαίσιο αποσκοπεί :
α) Στην διασφάλιση άνετων και ασφαλών συνθηκών κίνησης των πεζών, οι οποίες θα συνάδουν με το πνεύμα των ποιοτικών προτύπων της αστικής ανάπτυξης και στην ρύθμιση των χρήσεων των κοινοχρήστων χώρων.
β) Στην ουσιαστική προάσπιση των θεμελιωδών ανθρωπίνων δικαιωμάτων και στην αποτροπή κάθε κοινωνικού αποκλεισμού των ευάλωτων ομάδων πολιτών, με την διευκόλυνση κίνησης των ατόμων με αναπηρία ΑΜεΑ.
γ) Στην ευχερή προσπέλαση και τροφοδοσία των εμπορικών καταστημάτων, στην εξυπηρέτηση των λοιπών δραστηριοτήτων και στην πρόληψη κινδύνων που δημιουργούνται από την ανεξέλεγκτη εναπόθεση αντικειμένων κάθε είδους σε κοινόχρηστους χώρους.
δ) Στη διασφάλιση του κοινόχρηστου χαρακτήρα των πλατειών, των πεζοδρόμων, των πεζοδρομίων, στην ανάπτυξη της τοπικής οικονομίας αλλά και στην ισορροπημένη οικονομική ωφέλεια τους από τον Δήμο.
ε) Στην τουριστική προβολή, την αισθητική προστασία και την βελτίωση των κοινόχρηστων χώρων.
στ) Στην αναβάθμιση της ποιότητας ζωής των πολιτών και των φιλοξενουμένων της πόλης μας.
ζ) Στην προστασία των δομικών στοιχείων του εξοπλισμού των κοινοχρήστων χώρων.
η) Στην ορθολογική και με προϋποθέσεις αξιοποίηση των παραχωρούμενων κοινόχρηστων χώρων.
1) Το από 25-04-1996 Προεδρικού Διατάγματος (499/Δ/16-5-96) «περί ιστορικού κέντρου της πόλης των Πατρών».
2) Τον Ν. 3852/10 « Νέα Αρχιτεκτονική της Αυτοδιοίκησης και της Αποκεντρωμένης Διοίκησης – πρόγραμμα Καλλικράτης»
3) Τον Ν.3463/2006 (ΦΕΚ 11Α/2006) «Κύρωση του Κώδικα Δήμων και Κοινοτήτων».
4) Τον Αστικού Κώδικα – Διαχείριση και αξιοποίηση των κοινοχρήστων χώρων κατά τρόπο που να μην αναιρείται η κοινή χρήση και να προάγεται η κοινή ωφέλεια.
5) Το B.Δ. 24-9/1958 «περί κωδικοποίησης ως ενιαίο κείμενο νόμου των ισχυουσών περί προσόδων των Δήμων και Κοινοτήτων».
6) Τον Ν. 1080/80- ΦΕΚ 246/Α/1980 περί τροποποίησης και συμπλήρωσης διατάξεων περί προσόδων των Ο.Τ.Α. νομοθεσίας και άλλων συναφών διατάξεων και ειδικότερα του άρθρου 3 «τέλος χρήσεως πεζοδρομίων, πλατειών και λοιπόν κοινοχρήστων χώρων», όπως αυτές ισχύουν σήμερα.
7) Τον κτίριο- δομικό κανονισμό ( αρ.3046/304/30-1/1989 , ΦΕΚ 59 Δ, όπως τροποποιήθηκε με το ΥΠΕΝ/ΔΑΟΚΑ/66006/2360 ΦΕΚ 3985Β/2023 )
8) Η αρ. οικ ΥΠΕΝ/ΔΜΕΑΑΠ/124964/1561 ΦΕΚ 6213/Β/7-12-2022 όπως τροποποιήθηκε με την υπ. αρ ΠΕΝ/ΓΓΧΣΑΠ/61667/98 ΦΕΚ 2859/6-6-2025 απόφαση ΥΠΕΝ.
9) Το με αρ. 5311 Φ. 700.2 /26-5-2025 έγγραφο της ΠΕ ΠΥΡΟΣΒΕΣΤΙΚΗΣ Δυτ. Ελλάδος.
10) Ο Οργανισμός Εσωτερικής Υπηρεσίας Δήμου Πατρέων.
11) Οι διατάξεις του νέου ΚΟΚ Ν. 5209/2025.
12) Το άρθρο 31 του Ν. 5143/2024 Αύξηση προστίμου αυθαίρετης χρήσης κοινόχρηστων χώρων - Τροποποίηση παρ. 8 άρθρου 13 του από 24.9/10.10.1958 β.δ. (Απόφαση Α.Π. 52716/20-11-01 της Γεν. Δ/νσης Πολεοδομίας, Δ/νση Ο.Κ.Κ του ΥΠΕΧΩΔΕ ΦΕΚ 1663/Β/2001).
13) Η Μεμονωμένη Κανονιστική με αρ. απ. 722/2023 του ΔΣ (πεζόδρομοι- πεζοδρόμια -πλατείες της οδού Παπαδιαμαντοπούλου και των κάθετων οδών) που διατηρείται σε ισχύ.
14) Η Μεμονωμένη Κανονιστική με αρ. απ. 49/2022 του ΔΣ ( Πλατεία Εθνικής Αντιστάσεως) που διατηρείται σε ισχύ.
15) Η υπ΄ αρ. 41/2010 απόφαση του ΔΣ και το παράρτημα αυτής σύμφωνα με το οποίο, διατηρείται σε ισχύ η παραχώρηση χρήσης τμήματος των πεζοδρόμων Ρήγα Φεραίου, Παντανάσσης, Γεροκωστοπούλου, Αγίου Νικολάου και Ηφαίστου.
16) Ο Κανονισμός Λειτουργίας των Περιπτέρων αρ. απ. ΔΣ 48/2022.
17) Ο κανονισμός Καθαριότητας.
18) Οι ισχύουσες Υγειονομικές Διατάξεις.
Για ειδικούς λόγους και για περιπτώσεις που δεν καλύπτονται από την παρούσα κανονιστική, είναι δυνατόν:
- Να χωροθετηθεί από την Δ/νση Διαχείρισης Προσόδων και Δημ. Περιουσίας κοινόχρηστος χώρος μετά από εκδήλωση ενδιαφέροντος και κατόπιν μελέτης των ιδιαίτερων χαρακτηριστικών του χώρου που δεν είχε χωροθετηθεί στο παρελθόν, διότι δεν είχε εκφραστεί το ανάλογο ενδιαφέρον.
- Να εκδοθεί μεμονωμένη κανονιστική πράξη κατόπιν σύνταξης σχετικής νέας αρχιτεκτονικής μελέτης από την Δ/νση Αρχιτεκτονικού Έργου – Η/Μ, που θα αφορά κοινόχρηστους χώρους.
- Να προβλεφθούν χωροθετήσεις σε κοινόχρηστους χώρους για την ενίσχυση της βιώσιμης αστικής κινητικότητας από την αρμόδια Δ/νση Πολεοδομικού Κυκλοφοριακού Σχεδιασμού & Δόμησης.
- Να γίνουν σημειακές μεταβολές όποτε κριθεί απαραίτητο.
Κοινόχρηστος χώρος είναι ο κάθε είδους κοινόχρηστος χώρος κατά την έννοια των σχετικών διατάξεων του Ν. 1080/1980, όπως ισχύουν κάθε φορά, ήτοι όλοι οι δρόμοι και τα πεζοδρόμια τους, οι πλατείες και τα πεζοδρόμια τους, οι πεζόδρομοι, τμήματα των δημοτικών οδών που έχουν κατασκευαστεί ως πεζόδρομοι, στοές και το υπέδαφος όλων αυτών, οι αποτμήσεις και το υπέδαφος αυτών, ο δαπέδιος χώρος μεταξύ θέσεως των προσόψεων των ισογείων οικοδομών και των εγκεκριμένων οικοδομικών γραμμών, κήποι και χώροι πρασίνου, παιδικές χαρές, πάρκα και γενικά κάθε είδους δημοτικός ή δημόσιος χώρος που έχει αφεθεί προσωρινά ή μόνιμα σε κοινή χρήση, η κυριότητα των οποίων ανήκει στον Δήμο.
Τέλος είναι η χρηματική παροχή και καταβάλλεται στον Δήμο εις βάρος αυτών που χρησιμοποιούν, διαρκώς ή πρόσκαιρα, τις πλατείες, τους πεζόδρομους και εν γένει τους κοινόχρηστους χώρους. Έχει ανταποδοτικό χαρακτήρα (ΣτΕ 140/89 Διοι.Δικ. 1990 σελ. 1228) και ανήκει στην κατηγορία των Γενικών ή Ανειδίκευτων Εσόδων.
Άδειες χρήσης κοινοχρήστου χώρου είναι οι ατομικές διοικητικές πράξεις παραχώρησης χρήσης κοινόχρηστου χώρου σε ιδιώτη, που υπόκειται σε ανάκληση σύμφωνα με τις γενικές Αρχές του Διοικητικού Δικαίου και τον Κώδικα Διοικητικής Διαδικασίας και τις ειδικές διατάξεις του άρθρου 3 του Ν. 1080/80, όπως τροποποιήθηκε και συμπληρώθηκε μεταγενέστερα. Η χορήγηση του κοινόχρηστου χώρου, ειδικά για καταστήματα υγειονομικού ενδιαφέροντος και εμπορικά προϋποθέτει τη νόμιμη λειτουργία αυτών.
Ανάκληση άδειας είναι η διοικητική πράξη κύρωσης με την οποία αίρεται η ισχύς μιας άλλης διοικητικής πράξης και αποσκοπεί στη συμμόρφωση του υπόχρεου προς τις ρυθμίσεις του Νόμου και του παρόντος κανονισμού.
Αυθαίρετη χρήση θεωρείται η χρήση του κοινόχρηστου χώρου χωρίς την προηγούμενη άδεια του δημάρχου (ΣτΕ 766/87 Νο Β 1990σελ. 739). Αυθαίρετη, επίσης, θεωρείται η χρήση του κοινόχρηστου χώρου κατά παράβαση των όρων της χορηγηθείσας άδειας, είτε αυτοί αφορούν το είδος του κοινόχρηστου χώρου ( πλατεία, πεζόδρομος κλπ), είτε τη διάρκεια της άδειας (άρθρο 13παρ. 15 εδάφιο α’’ ΒΔ 24/9-20/10/58, όπως αντικαθίσταται από το άρθρο 3 του Ν. 1080/1980) και αρ. 31 του Ν.5143/2024, είτε την υπέρβαση κατάληψης.
Πεζόδρομος νοείται η οδός η οποία χρησιμοποιείται από τους πεζούς, από τους χρήστες εισόδου – εξόδου οχημάτων προς και από τους ιδιωτικούς χώρους στάθμευσης ιδιοκτησιών επί του πεζοδρόμου, από τα οχήματα εφοδιασμού ή τροφοδοσίας (σε συγκεκριμένες ώρες ) και τα οχήματα έκτακτης ανάγκης. Στους πεζόδρομους εντάσσονται όλοι οι χαρακτηριζόμενοι ως άνω, ανεξαρτήτως της ύπαρξης πεζοδρομίου ή μη.
Παρόδια στοά είναι ο προσπελάσιμος από το κοινό στεγασμένος ελεύθερος χώρος με τουλάχιστον 1,50 μ. ελάχιστο ελεύθερο πλάτος για την κίνηση των πεζών και των ατόμων με αναπηρία, που κατασκευάζεται σε επαφή με την οικοδομική γραμμή στην στάθμη του πεζοδρομίου και επιβάλλεται από το εγκεκριμένο ρυμοτομικό σχέδιο ή από τους όρους δόμησης της περιοχής.
Διαμπερής στοά είναι ο στεγασμένος ελεύθερος χώρος που συνδέει δύο ή περισσότερους κοινόχρηστους χώρους ( πεζόδρομο με πλατεία κλπ), είναι προσπελάσιμος από το κοινό με τουλάχιστον 1,50 μ. ελάχιστο ελεύθερο πλάτος για την κίνηση των πεζών και των ατόμων με αναπηρία.
Αδιέξοδη στοά είναι ο στεγασμένος χώρος όπου παρεμποδίζεται η ελεύθερη κίνηση των πεζών λόγω μη υλοποίησης της στοάς.
Επαγγελματικός / Εμπορικός εξοπλισμός θεωρούνται τα κάθε μορφής λειτουργικά ή διακοσμητικά στοιχεία (τραπεζοκαθίσματα, ζαρτινιέρες, θερμάστρες, ομπρέλες, σκίαστρα, προθήκες, πάγκοι, εμπορεύματα, μηχανήματα και ότι άλλο καταλαμβάνει τον κοινόχρηστο χώρο) που εξυπηρετούν την πελατεία και την λειτουργία των καταστημάτων.
Αστικός εξοπλισμός είναι ό,τι εξυπηρετεί τις ανάγκες του Δήμου, όπως κάδοι απορριμμάτων, κολωνάκια, ζώνες πρασίνου, υδάτινα στοιχεία (πχ σιντριβάνια), κιγκλιδώματα, παγκάκια, πεζούλια, φωτιστικά.
Οδικός εξοπλισμός είναι ό,τι εξυπηρετεί τις ανάγκες των οδών και της κυκλοφορίας, όπως φανοστάτες, πινακίδες σήμανσης, σηματοδότες κλπ.
Κατάστημα υγειονομικού ενδιαφέροντος ΚΥΕ στο οποίο παραχωρείται κοινόχρηστος χώρος είναι ο αυτοτελής χώρος που λειτουργεί κάθε φύσεως επιχείρηση παροχής υπηρεσιών εστίασης και ψυχαγωγίας καθήμενων ή μη πελατών.
Για την εφαρμογή του παρόντος κανονισμού αρμόδιες είναι :
1.Η Διεύθυνση Διαχείρισης Προσόδων και Δημοτικής Περιουσίας με το Τμήμα Εσόδων για την χορήγηση της άδειας κατάληψης κοινοχρήστου χώρου, εφόσον πληρούνται όλες οι νόμιμες προϋποθέσεις, καθώς και το Τμήμα ελέγχου Κοινοχρήστων χώρων για τον έλεγχο εφαρμογής της παρούσας.
2. Η Διεύθυνση Αρχιτεκτονικού Έργου Η/Μ για τις ειδικές περιπτώσεις χωροθετήσεων που δεν καλύπτονται από την παρούσα κανονιστική πράξη.
3.Η Διεύθυνση Πολεοδομικού – Κυκλοφοριακού Σχεδιασμού και Δόμησης για τον έλεγχο πολεοδομικών αυθαιρεσιών.
4.Η Διεύθυνση Διαχείρισης Αστικών Απορριμμάτων Ανακύκλωσης & Μηχανολογικού Εξοπλισμού για τον έλεγχο των περιπτώσεων που την αφορούν, την εφαρμογή του κανονισμού καθαριότητας και την αποστολή των ελέγχων παραβατικότητας που συντάσσει η υπηρεσία της προς βεβαίωση στην Δ/νση Προσόδων.
5.Η Διεύθυνση Περιβάλλοντος - Ενέργειας & Πρασίνου, στον έλεγχο των περιπτώσεων που την αφορούν και την αποστολή των ελέγχων παραβατικότητας που συντάσσει η υπηρεσία της προς βεβαίωση στην Δ/νση Προσόδων.
6.Η Διεύθυνση Τοπικής Οικονομίας στον έλεγχο της λειτουργίας των καταστημάτων υγειονομικού ενδιαφέροντος εκτός των εγκεκριμένων αδειών τους από κοινού με την Δ/νση Προσόδων, στον έλεγχο της διαφήμισης με την εφαρμογή του σχετικού κανονισμού, συντάσσοντας εκθέσεις παράβασης με το αναλογούν πρόστιμο και διαβιβάζοντάς τες αρμοδίως στην Δ/νση Προσόδων για την ν βεβαίωση προστίμων στις περιπτώσεις εντοπισμού παραβατικότητας των ανωτέρω.
7.Η Διεύθυνση Συντήρησης & Αυτεπιστασίας για την αποκατάσταση ζημιών που προκαλούνται στους κοινόχρηστους χώρους, την αποτίμηση των ζημιών και κοστολόγησή τους, έτσι ώστε το τμήμα Εσόδων να βεβαιώνει στους παραβάτες, τα πρόστιμα.
8.Η Δημοτική Επιτροπή που αποφασίζει και παραπέμπει στο Δημοτικό Συμβούλιο θέματα που έχουν σχέση με την εκ νέου σύσταση, αναδιατύπωση, συμπλήρωση ή τροποποίηση του παρόντος κανονισμού.
9.Η Ελληνική Αστυνομία και οι αρμόδιοι φορείς του δημοσίου και οι ανεξάρτητες αρχές ως προς το σκέλος της αρμοδιότητάς τους.
- Δεν επιτρέπεται σε καμία περίπτωση η κατάληψη και η χρήση κοινοχρήστων χώρων από κανένα Οργανισμό, Σύλλογο, Εταιρεία, ιδιώτη και κλπ. για οποιαδήποτε χρήση χωρίς προηγούμενη άδεια από τον Δήμο.
- Δεν επιτρέπεται στους κοινόχρηστους χώρους η επέκταση των εργασιών των καταστημάτων & των επιτηδευματιών κάθε μορφής (μίνι μάρκετ, σούπερ μάρκετ, παντοπωλεία, ιχθυοπωλεία, συνεργεία αυτοκινήτων, μοτοσικλετών, επίπλων, εμπορικά καταστήματα και άλλα στεγασμένα επαγγέλματα πλην της εστίασης και των εξαιρέσεων που αναφέρονται στο σημείο 20 & 21 του παρόντος άρθρου ).
- Ο παραχωρούμενος χώρος θα είναι οριοθετημένος (άρθρο 5, Π.Δ. 499/96), έτσι ώστε να διευκολύνεται ο έλεγχος από κάθε εποπτεύουσα αρχή και να είναι ξεκάθαρο προς όλους ότι η παραχώρηση του κοινόχρηστου χώρου δεν αποτελεί μόνο δικαίωμα των καταστηματαρχών αλλά δημιουργεί σε αυτούς κυρίως την υποχρέωση τήρησης των κανόνων χτίζοντας έτσι μια νέα σχέση μεταξύ συμβαλλομένων - Δήμου και καταστηματαρχών- με εμπιστοσύνη και αξιοπιστία. Στο άμεσο μέλλον θα λειτουργήσει η εφαρμογή του my street.
- Ο Δήμος Πατρέων μπορεί να αρνηθεί την παραχώρηση εξωτερικού κοινόχρηστου χώρου σε περιπτώσεις καταστημάτων που δεν δύνανται λόγω μεγέθους κλειστού χώρου και δυναμικότητας, να παρέχουν υπηρεσίες εστίασης πέραν της δυναμικότητας της αδείας που κατέχουν.
- Ο παραχωρούμενος χώρος προς κατάληψη αναπτύσσεται πάντα σε επαφή με την οικοδομική γραμμή (ΟΓ) του καταστήματος, ή στην περίπτωση που υπάρχει πρασιά, σε επαφή με τη ρυμοτομική γραμμή (ΡΓ) του καταστήματος. Η επιφάνεια του παραχωρούμενου χώρου θα είναι ενιαία, εκτός συγκεκριμένων εξαιρέσεων όταν θα διαπιστωθεί από την υπηρεσία ότι απαιτείται διαφορετική χωροθέτηση. Ο υπολογισμός του εμβαδού σε γωνιακά καταστήματα ή καταστήματα με περισσότερες πλευρές προς τον κοινόχρηστο χώρο, γίνεται χωριστά για κάθε όψη και ο διατιθέμενος προς κατάληψη χώρος στην κάθε όψη υπολογίζεται ξεχωριστά. Η διάταξη των λειτουργικών στοιχείων επί του παραχωρούμενου κοινόχρηστου χώρου θα είναι τέτοια ώστε να δημιουργούνται διάδρομοι για την κίνηση των επισκεπτών. Η συνολική παρέμβαση θα τυγχάνει της έγκρισης των υπηρεσιών του Δήμου κατόπιν υποβολής των αναγκαίων κατόψεων και διενέργειας αυτοψιών, πριν από την έκδοση της άδειας.
- Επιτρέπεται στα πεζοδρόμια η ανάπτυξη τραπεζοκαθισμάτων με τις εξής προϋποθέσεις: η χωροθέτηση τους θα γίνεται από το τμήμα εσόδων μετά από αυτοψία και αξιολόγηση κατά περίπτωση, λαμβάνοντας υπόψη την ζώνη περιορισμού (0,40 από το κράσπεδο), την ζώνη αστικού εξοπλισμού (0,35), την ζώνη ελεύθερης όδευσης πεζών πλάτους 1,50 μ. και το πραγματικό ελεύθερο ύψος 2,20 μ για την τοποθέτηση τεντών.
- Δεν επιτρέπεται η παραχώρηση κοινόχρηστου χώρου σε σημείο που προβάλει σε διάβαση πεζών ή φωτεινό σηματοδότη.
- Επιτρέπεται η παραχώρηση χρήσης συνεχόμενου κοινόχρηστου χώρου σε προβολή διπλανής – όμορης ιδιοκτησίας εφόσον δεν θίγονται δικαιώματα άλλου δικαιούμενου της χρήσης αυτής, πλήν των ΚΥΕ που δραστηριοποιούνται σε πεζόδρομους ( ΑΠ. ΔΣ 41/2010). Στις περιπτώσεις που επιτρέπεται απαραίτητη προϋπόθεση για την παραχώρηση είναι η υποβολή υπεύθυνης δήλωσης διατύπωσης σύμφωνης γνώμης του ιδιοκτήτη, η οποία θα πρέπει να ανανεώνεται ετησίως (άρθρο 3, Ν. 1080/80). Η παραχώρηση κοινόχρηστου χώρου πλατείας,σε προβολή διπλανού- όμορου καταστήματος που δεν θα τον χρησιμοποιήσει επιτρέπεται πάντα σε συνέχεια του ήδη παραχωρημένου χώρου του αιτούντος καταστήματος, υπό την απαραίτητη προϋπόθεση διασφάλισης απρόσκοπτης διέλευσης των πεζών όπως ορίζεται στις πλατείες.
- Δεν επιτρέπεται η χρήση του αστικού - δημόσιου εξοπλισμού προς όφελος των καταστηματαρχών ή της διαφήμισης ως επίσης δεν επιτρέπεται καμία παρέμβαση όπως αφισοκόλληση, ανάρτηση πανό, εναπόθεση καλωδίων, μεγαφωνικών εγκαταστάσεων, πινακίδων κλπ. Ιδιαίτερα σε χώρους που υπάρχουν πεζούλια, καθιστικά, παγκάκια κλπ ο ελεύθερος χώρος μπροστά από το καθιστικό πρέπει να είναι 2,20μ προς εξυπηρέτηση των καθήμενων και των πεζών.
- Πρέπει να λαμβάνονται αυστηρά υπόψη τα ισχύοντα από τις διατάξεις (Αποφ. Αριθμ. Οικ. ΥΠΕΝ/ΔΜΕΑΑΠ/124964/1561/2022, ΦΕΚ 6213Β/7-12-2022) :
α) οποιαδήποτε εξυπηρέτηση όπως σήμανση, φύτευση, αστικός εξοπλισμός απαγορεύεται εντός της ελεύθερης ζώνης όδευσης πεζών.
β) σε όλο το μήκος της ελεύθερης ζώνης όδευσης πεζών επιβάλλεται πραγματικό ελεύθερο ύψος όδευσης πεζών ίσο με 2,20 μ. απολύτως ελεύθερο από οποιοδήποτε εμπόδιο (μαρκίζες, επιγραφές, σημάνσεις, πινακίδες , κλαδιά δέντρων, τέντες κλπ).
γ) συμπεριλαμβάνεται ο οδηγός όδευσης τυφλών εντός της ελεύθερης ζώνης όδευσης πεζών.
Δεν επιτρέπεται καμία μόνιμη ή περίκλειστη κατασκευή στον παραχωρούμενο κοινόχρηστο χώρο όπως περίκλειστοι χώροι με πακτωμένα υποστυλώματα ή ανεμοφράκτες που προεκτείνονται-καλύπτονται από τέντες διάφανες ή μη, τέντες που κατεβάζουν κάθετα διάφανα τμήματα πλαστικών τεντών προς αποφυγή της βροχής ή του αέρα, μεταλλικές κατασκευές με δάπεδα -deck, πακτωμένες πέργκολες ή ομπρέλες, μόνιμες κατασκευές με πόρτες εισόδου ή χωρίς πόρτες που δημιουργούν περίκλειστη ατμόσφαιρα, και ότι άλλο δημιουργεί προϋποθέσεις κλειστής ατμόσφαιρα σε κοινόχρηστο χώρο υποβαθμίζοντας την αισθητική του χώρου αυτού.
Σε περιπτώσεις παραβατικότητας συντάσσεται έκθεση ελέγχου το αντίγραφο της οποίας παραδίδεται στον καταστηματάρχη και παράλληλα δίνεται εντολή να άρει την αυθαίρετη κατάληψη εντός επτά (7) ημερών από την επομένη της επίδοσης της εντολής άρσης της αυθαίρετης κατάληψης. Η έκθεση διαβιβάζεται στην πολεοδομία για τις δικές της ενέργειες σε περιπτώσεις παραβάσεων που εμπίπτουν στην αρμοδιότητά της. Σε περίπτωση μη συμμόρφωσης τα εν λόγω αντικείμενα απομακρύνονται άμεσα από συνεργείο του δήμου, ο οποίος μπορεί να ζητήσει, προς τον σκοπό αυτόν, την άμεση συνδρομή των Αστυνομικών Αρχών. Τα αντικείμενα που αφαιρούνται καταγράφονται σε ειδική έκθεση, η οποία υπογράφεται από τον επικεφαλής του συνεργείου του δήμου που τα απομακρύνει και δεν επιστρέφονται αν προηγουμένως δεν καταβληθεί ειδικό πρόστιμο για τα έξοδα μεταφοράς και αποθηκεύσεως αυτών, το οποίο καθορίζεται από την ετήσια απόφαση τελών του Τμήματός Εσόδων. Για κάθε διαπίστωση τέτοιων παραβάσεων στα ΚΥΕ, θα επιβάλλεται πρόστιμο ίσο με το διπλάσιο του μεγαλύτερου κατά τετραγωνικό μέτρο ποσού που καθορίστηκε με την απόφαση του ΔΣ ή σφράγιση από 1-10 ημέρες (άρθρο 31του Ν. 5143/2024).
Για τα υπόλοιπα καταστήματα που αδειοδοτούνται για χρήση κοινόχρηστου χώρου όπως οπωροπωλεία, ανθοπωλεία, οπωροπαντοπωλεία (και μόνο για τα οπωροκηπευτικά είδη), βιολογικά προϊόντα κλπ αν μετά την παρέλευση επτά (7) ημερών από την επομένη της επίδοσης της εντολής άρσης της αυθαίρετης κατάληψης, και ανεξάρτητα αν έχουν απομακρυνθεί ή όχι από τον δήμο τα εν λόγω αντικείμενα, διαπιστωθεί δεύτερη παράβαση, αφαιρείται η άδεια χρήσης κοινόχρηστου χώρου για χρονικό διάστημα έξι (6) μηνών (άρθρο 31του Ν. 5143/2024).
Για τις περιπτώσεις φθοράς στο δάπεδο ή σε στοιχεία αστικού εξοπλισμού ή δημόσιου κτιρίου,
θα συντάσσεται έκθεση συμβάντος και θα επιβάλλεται επιπλέον πρόστιμο διακοσίων (200) €. Η έκθεση θα αποστέλλεται στην αρμόδια τεχνική υπηρεσία για να συνταχθεί το σχετικό πρωτόκολλο εκτίμησης της ζημιάς, το δε ποσό αυτού θα καταλογίζεται και θα βεβαιώνεται σε βάρος του υπαιτίου.
- Στις πλατείες, τα άλση, τα πάρκα κλπ επιτρέπεται η παραχώρηση μόνο στα σημεία που είναι κατάλληλος ο χώρος για τέτοια χρήση κατόπιν αδείας και χωροθέτησης από την αρμόδια υπηρεσία του Δήμου. Σε διαδρόμους πλατειών κάτω των 2,5 μ. δεν επιτρέπεται η παραχώρηση κοινόχρηστου χώρου. Απαγορεύεται δε η τοποθέτηση οποιουδήποτε κινητού ή σταθερού αντικειμένου από ιδιώτη εντός των χώρων φύτευσης των πλατειών, πεζοδρόμων δημόσιων παρτεριών.
- Τα καταστήματα που προβάλλουν στην δημοτική Μαρίνα μπορούν να τοποθετήσουν τραπεζοκαθίσματα στην προβολή τους με την προϋπόθεση ότι αφήνουν 2 μέτρα ελεύθερη όδευση πεζών επί του πεζοδρόμιου που γειτνιάζει με το κατάστημα και βρίσκεται προς την πλευρά της θάλασσας.
- Δε θα χορηγείται καμία άδεια χρήσης κοινόχρηστου χώρου σε πεζοδρόμιο το οποίο έχει πλάτος έως 1,50 μέτρο, διότι έχει αποδειχθεί ότι δεν υπάρχει λειτουργικά ωφέλιμος χώρος. Στα υπόλοιπα πεζοδρόμια ο παραχωρούμενος χώρος θα είναι εφαπτόμενος με την προβολή του καταστήματος όπου αυτό είναι εφικτό , αλλιώς θα ισχύει το αντίστροφο πάντα υπό την προϋπόθεση της διατήρησης ελεύθερης ζώνης τουλάχιστον 1,50μ. για την διέλευση των πεζών.
- Απαγορεύεται ρητά η τοποθέτηση επαγγελματικού εξοπλισμού (τραπεζοκαθίσματα, θερμάστρες, ζαρτζινιέρες, ομπρέλες, τέντες κλπ) του καταστήματος υγειονομικού ενδιαφέροντος, εκτός του παραχωρημένου κοινόχρηστου χώρου.
- Επιτρέπεται η τοποθέτηση ομπρελών, ανεμοφρακτών με τιςπροδιαγραφές στήριξης που αναφέρονται στην σελίδα 14 (κεφ. ανεμοφράκτες) εντός του παραχωρημένου χώρου των ΚΥΕ. Για κάθε προξενούμενη φθορά στους παραχωρημένους χώρους των πεζοδρόμων, των πεζοδρομίων και των πλατειών, υπεύθυνοι είναι οι καταστηματάρχες που έχουν αδειοδοτηθεί γι’ αυτόν τον χώρο και υποχρεούνται να αποκαταστήσουν την φθορά. Για κάθε παράνομη πάκτωση οποιουδήποτε αντικειμένου ή αν αποχωρήσουν από τον κοινόχρηστο χώρο χωρίς την αναγκαία αποκατάσταση των ζημιών που προκλήθηκαν από βίδωμα εξοπλισμού, θα συντάσσεται έκθεση επιβολής προστίμου ύψους από 200-500 € από την αρμόδια υπηρεσία ελέγχου, το οποίο θα καταλογίζεται και θα βεβαιώνεται σε βάρος του αφμ του καταστήματος ή του νομίμου εκπροσώπου, προς αποκατάσταση της προκαλούμενης φθοράς.
- Ο χώρος που βρίσκεται στην προβολή όλων των πλευρών των δημοσίων ή δημοτικών κτιρίων, των μνημείων πολιτιστικής κληρονομιάς, των εκκλησιαστικών μνημείων και ναών, των τραπεζών, των δημόσιων οργανισμών κλπ δεν παραχωρείται ως χώρος οποιασδήποτε επαγγελματικής εκμετάλλευσης, έτσι ώστε να μην παρεμποδίζεται η ελεύθερη κίνηση και η πρόσβαση των πολιτών στα κτίρια αυτά, αλλά και να αναδεικνύονται λειτουργικά και σημειολογικά.Για τα καταστήματα που βρίσκονται πλησίον μνημείων ή εντός προστατευμένης περιοχής ή ιστορικού τόπου, υποχρεούται η υπηρεσία εσόδων πριν την παραχώρηση του κοινόχρηστου χώρου να ζητά την έγκριση για την παραχώρηση από την Εφορεία Αρχαιοτήτων ή την Υπηρεσία Νεωτέρων Μνημείων. Δεν πρέπει σε καμία περίπτωση να εμποδίζεται η ανάδειξη και η προβολή των μνημείων της πόλης και των ιστορικών κτηρίων που αποτελούν τοπόσημα της πόλης.
- Η φύτευση καλλωπιστικών φυτών & δέντρων στις πλατείες, τους πεζοδρόμους & τα πεζοδρόμια θα γίνεται µόνο από την Διεύθυνση Περιβάλλοντος- Ενέργειας & Πρασίνου του Δήμου, έτσι ώστε να µην παρατηρείται το φαινόμενο χρήσης ακατάλληλων φυτών, υλικών ή κατασκευών.
- Η καθαριότητα και η προστασία του παραχωρηθέντος τμήματος του κοινόχρηστου χώρου είναι ευθύνη του υπευθύνου του καταστήματος. Στην περίπτωση που γειτνιάζει ο παραχωρημένος χώρος με αστικό εξοπλισμό, ο καταστηματάρχης οφείλει να μεριμνά για την ασφάλειά του σε πιθανές περιπτώσεις καταστροφής ή βανδαλισμού του και να ενημερώνει τον Δήμο για την αποκατάσταση της ζημιάς.
- Απαγορεύεται η έκθεση εμπορευμάτων ή η τοποθέτηση τραπεζοκαθισμάτων έξω από τα καταστήματα πλην των αδειοδοτημένων ΚΥΕ, με εξαίρεση τα οπωροπωλεία, τα ανθοπωλεία, τα λευκοσιδηρουργεία, τα είδη λαϊκής τέχνης, τα οπωροπαντοπωλεία (μόνο για τα οπωροκηπευτικά είδη), τα καταστήματα με βιολογικά προϊόντα και τα γεωπονικά καταστήματα των οποίων τα εκτιθέμενα προϊόντα θα καταλαμβάνουν από 0,50μ.-1,00μ. από την οικοδομική γραμμή του κτιρίου και μόνο μπροστά από την πρόσοψή τους, εφόσον δεν εμποδίζεται η ελεύθερη όδευση των πεζών πλάτους ( 1,50 μ.), η οποία απαραίτητα θα πρέπει να εξασφαλίζεται.
- Εξαίρεση στην έκθεση εμπορευμάτων γίνεται μόνο στην περιοχή του Μαρκάτου - οδός 25ης Μαρτίου μέχρι Κανακάρη – Γεροκωστοπούλου - Ηφαίστου - Αγίου Νικολάου, λόγω του παραδοσιακού χαρακτήρα της περιοχής και μόνο για τα εμπορικά καταστήματα καλαθοποιίας, χαλκουργίας, σιδηρουργίας, στρατιωτικών ειδών, λευκών ειδών, χειροποίητων υποδημάτων, γυαλικών, στα οποία επιτρέπεται να τοποθετούνται ατελώς έμπροσθεν των καταστημάτων και μόνο επί των προσόψεων τους τα προϊόντα, εφόσον δεν εμποδίζεται η ελεύθερη όδευση των πεζών πλάτους ( 1,50 μ.), όπου υφίσταται, η οποία απαραίτητα θα πρέπει να εξασφαλίζεται.
- Η όδευση τυφλών και η ράμπα ΑΜεΑ ( Άτομα με Αναπηρία) πρέπει να είναι ελεύθερες 0,50 περιμετρικά και εκατέρωθεν αυτών.
- Από την κατάληψη του κοινόχρηστου χώρου πρέπει να υπάρχει ελεύθερη ελάχιστη απόσταση από τους φωτεινούς σηματοδότες 1,50 μέτρο και από τον κάδο απορριμμάτων 1 μέτρο. Από τους φωτεινούς σηματοδότες πρέπει να υπάρχει ελεύθερη απόσταση από την ανάπτυξη τέντας τουλάχιστον 0,50μ. Πρέπει να υπάρχει ελεύθερη προσβασιμότητα στα καφάο ΟΤΕ, ΔΕΗ, ΔΗΜΟΥ και λοιπών Οργανισμών Κοινής Ωφελείας. Η παραχώρηση κοινόχρηστου χώρου πλησίον του κρασπέδου απαγορεύεται όταν υπάρχει πιάτσα ταξί, σε μήκος 3μ. από την αρχή αυτής.
- Στις παρόδιες στοές, διαμορφωμένες ή υπό διαμόρφωση, και ανάμεσα στις κολώνες αυτών μπορεί να χορηγηθεί άδεια χρήσης για την τοποθέτηση τραπεζοκαθισμάτων ή πάσο με σκαμπό, λαμβάνοντας υπόψη ότι η ζώνη περιορισμού (0,40 από το κράσπεδο), η ζώνη αστικού εξοπλισμού (0,35) όπου υπάρχει είναι ελεύθερες και εξασφαλίζεται επίσης σε ευθεία γραμμή ελεύθερη συνεχόμενη λωρίδα διέλευσης πεζών πλάτους 1,50 μ.( ΦΕΚ 2859/6-6-2025 άρθρο 1 παρ. 2). Ο εξοπλισμός του ΚΥΕ δεν θα είναι μόνιμος, δεν θα στηρίζεται στις κολώνες και δεν θα αποθηκεύεται εκεί τις ώρες που δεν λειτουργεί το ΚΥΕ. Απαγορεύονται τα διακοσμητικά ή διαφημιστικά στοιχεία του καταστήματος στις κολώνες όπως και η τοποθέτηση πλαστικών διάφανων τεντών στην εξωτερική πλευρά των κολωνών. Επίσης απαγορεύεται η βαφή των κολωνών και της προβολής του καταστήματος επί στοάς, σε χρώμα άλλο από αυτό του κτηρίου, διότι αυτές πρέπει να αναδειχθούν. Επιτρέπεται η τοποθέτηση κάθετων μέσων σκίασης χωρίς ρίχτι με αναγραφόμενη την επωνυμία της επιχείρησης στην μια γωνία τους. Τα σκίαστρα αυτά θα τοποθετούνται στο μέσον της κολώνας και η πλήρης ανάπτυξή τους θα γίνεται μέχρι του ύψους του 1,90 μ. από το δάπεδο του πεζοδρομίου.
- Οι στοές του πεζόδρομου της Ρήγα Φεραίου και της οδού Γερμανού διατηρούν την δική τους κανονιστική και μπορούν να τοποθετούν τραπεζοκαθίσματα ανάμεσα στις κολώνες και εντός της στοάς εφόσον εξασφαλίζεται σε ευθεία γραμμή συνεχόμενη ελεύθερη λωρίδα διέλευσης πεζών, πλάτους 1,50 μ. Στην περίπτωση του πεζόδρομου της Ρήγα Φεραίου επιτρέπονται ανεμοφράκτες και σκίαστρα όπως αναφέρονται στο άρθρο 2 της παρούσας (σελ. 13 και 14). Στην οδό Γερμανού επιτρέπεται η τοποθέτηση κάθετων μέσων σκίασης χωρίς ρίχτι με αναγραφόμενη την επωνυμία της επιχείρησης στην μια γωνία τους, τα οποία θα τοποθετούνται στο μέσον της κολώνας και η πλήρης ανάπτυξή τους θα γίνεται μέχρι του ύψους του 1,90 μ. από το δάπεδο του πεζοδρομίου.
- Στις μη λειτουργικές-αδιέξοδες στοές, όπου δηλαδή παρεμποδίζεται η ελεύθερη κίνηση των πεζών λόγω μη υλοποίησης της στοάς και προκειμένου να βελτιωθεί η λειτουργικότητα των χώρων αυτών, δύναται να επιτραπεί η κατάληψη ολόκληρου του κοινόχρηστου χώρου, μόνο για το κατάστημα που εφάπτεται με το αδιέξοδο σε συνέχεια των υποστυλωμάτων της στοάς. Απαγορεύεται ρητά η αλλοίωση των χαρακτηριστικών της στοάς, απαγορεύονται τα διακοσμητικά ή διαφημιστικά στοιχεία του καταστήματος στις κολώνες της και η τροποποίησή της σε περίκλειστο χώρο, είτε με μεταλλικές κατασκευές εκτός των ανεμοφρακτών που αναφέρονται στην σελ. 13 της παρούσας, είτε με κάθετες τέντες που λειτουργούν ως προέκταση των ανεμοφρακτών, είτε με πόρτες κλπ στοιχεία, που συντείνουν στην δημιουργία περίκλειστου χώρου.
- Στις διαμπερείς στοές όπως η στοά της πλατείας Γεωργίου με την οδό Βούρβαχη, οι στοές της Γούναρη με Κανακάρη, οι στοές της Κορίνθου, Κανακάρη, Κολοκοτρώνη κλπ, επιτρέπεται η παραχώρηση χώρου για τραπεζοκαθίσματα, εφόσον αφήνουν ελεύθερη όδευση πεζών τουλάχιστον 1,50μ. Απαγορεύεται ρητά η αλλοίωση των χαρακτηριστικών της στοάς και η τροποποίησή της σε περίκλειστο χώρο, είτε με μεταλλικές κατασκευές, είτε με κάθετες τέντες που λειτουργούν ως προέκταση των ανεμοφρακτών, είτε με πόρτες κλπ στοιχεία, που συντείνουν στην δημιουργία περίκλειστου χώρου.
- Οι παραχωρηθέντες σε χρήση κοινόχρηστοι χώροι, θα οριοθετούνται με διακεκομμένη ή συνεχή ανεξίτηλη εποξειδική διαγράμμιση στο έδαφος. Η παραποίηση της σήμανσης ή η τοποθέτησή της εκτός του αδειοδοτούμενου χώρου, συνιστά παράβαση όρου παραχώρησης και αιτία ανάκλησης της σχετικής άδειας. Οι καταστηματάρχες υποχρεούνται να αποκαταστήσουν την σήμανση σε περίπτωση φθοράς ή να ενημερώσουν τον Δήμο για να αποκαταστήσει την φθορά. Σε περίπτωση αποδεδειγμένης εξαφάνισής της θα επιβάλλεται πρόστιμο διακόσια (200) € και σε περίπτωση υποτροπής, διπλασιασμός του προστίμου και ανάκληση της άδειας κατάληψης κοινοχρήστου χώρου.
- Δεν επιτρέπεται η χωροθέτηση κάδων απορριμμάτων ή ανακύκλωσης στους πεζοδρόμους ή τις εισόδους αυτών, πάνω σε πλατείες και μπροστά από μνημεία (κλίμακες, κτίρια, έργα τέχνης, κλπ.).
- Οι καταστηματάρχες που έχουν εφοδιαστεί με την αντίστοιχη άδεια κατάληψης κοινόχρηστου χώρου θα έχουν την απόλυτη ευθύνη για την διάταξη των στοιχείων του καταστήματός τους όπως τραπεζοκαθίσματα, ανεμοφράκτες, θερμάστρες, ψυκτικές μονάδες, ανεμιστήρες, ηλεκτρολογική εγκατάσταση, τέντες, ομπρέλες κλπ και θα είναι αποκλειστικά υπεύθυνοι για την ασφαλή τοποθέτησή και χρήση τους προς την διασφάλιση της αποφυγής ατυχημάτων.
- Η ηλεκτρολογική εγκατάσταση που επεκτείνεται από το κατάστημα σε παραχωρημένο κοινόχρηστο χώρο πλατείας, θα έχει την έγκριση αδειούχου ηλεκτρολόγου εγκαταστάτη, ο οποίος θα είναι ο υπεύθυνος γι΄ αυτήν την επέκταση όπως προβλέπει το άρθρο 159 του Ν. 4876/2021. Η Υ.Δ.Εγκαταστάτη Ηλεκτρολόγου θα κατατίθεται μαζί με την αίτηση αδειοδότησης του κοινόχρηστου χώρου και υποχρεούται ο κάθε καταστηματάρχης να την ανανεώνει σε κάθε τροποποίηση της.
- Δεν επιτρέπεται η τοποθέτηση ξύλινων δαπέδων σε κοινόχρηστους χώρους που παραχωρούνται εκτός των ειδικών εξαιρέσεων της ύπαρξης κλίσης από 5-10% στο δάπεδο, με σκοπό την ασφαλή τοποθέτηση των τραπεζοκαθισμάτων. Επίσης δεν επιτρέπεται η τοποθέτηση μοκετών στους κοινόχρηστους χώρους που παραχωρούνται. Η ευθύνη για την κατασκευή, στατική επάρκεια και συντήρηση του δαπέδου βαρύνει το δικαιούχο της χορηγηθείσας άδειας χρήσης κοινόχρηστου χώρου και ιδιοκτήτη του υπό λειτουργία καταστήματος.
Στον παραχωρούμενο χώρο η κατάληψη συνίσταται από τα εξής λειτουργικά στοιχεία επαγγελματικού φορητού εξοπλισμού: τραπεζοκαθίσματα, ανεμοφράκτες, θερμάστρες- ψυκτικές μονάδες, ανεμιστήρες, ζαρντινιέρες, πινακίδες (stand) με τον τιμοκατάλογο/μενού/προσφορές του καταστήματος, πάγκοι, πάσο, σκαμπό παγκάκια, βοηθητικά κινητά σκαλοπάτια και ότι κρίνεται απαραίτητο για την λειτουργία του καταστήματος. Ειδικά στο ιστορικό κέντροτης Πάτρας αποκλείονται τα πλαστικά τραπεζοκαθίσματα και οι πλαστικές ζαρντινιέρες. Ο ανωτέρω εξοπλισμός θα πρέπει να είναι κατασκευασμένος από καλής ποιότητας υλικά, να εναρμονίζεται με τον κοινόχρηστο χώρο και να μη φέρει επιγραφές ή διαφημίσεις. Οι όροι, οι προϋποθέσεις καθώς και οι απαγορεύσεις που πρέπει να τηρηθούν είναι οι εξής:
- Η διάταξη των λειτουργικών στοιχείων επί του παραχωρούμενου κοινόχρηστου χώρου να είναι τέτοια, ώστε να δημιουργούνται διάδρομοι για την απρόσκοπτη κίνηση των επισκεπτών και την προσβασιμότητα των ανθρώπων με αναπηρία ή των εμποδιζόμενων ατόμων, που θα προσμετρούνται κανονικά ως κατάληψη κοινόχρηστου χώρου.
- Στους κοινόχρηστους χώρους, παραχωρούμενους για κατάληψη ή μη, απαγορεύεται οποιαδήποτε μόνιμη κατασκευή (όπως υποστυλώματα, δάπεδα υπερυψωμένα ή όχι, ξύλινες πέργκολες, φωτιστικοί στύλοι καθώς και τοποθέτηση υπαίθριων μπαρ, ψυγείων, ντουλαπιών, κλπ). Απαγορεύεται όποια παρέμβαση - επέμβαση στην υποδομή των κοινόχρηστων χώρων καθώς και η πάκτωση τραπεζιών, πάγκων σερβιρίσματος, καθισμάτων, ομπρελών, ανεμοφρακτών και όποιων άλλων αντικειμένων που εξυπηρετούν τα καταστήματα.
- Απαγορεύεται ρητάη τοποθέτηση στους κοινόχρηστους χώρους της πόλης κάθε είδους εμπορευμάτων, εργαλείων ή άλλων αντικειμένων (τελάρα, κιβώτια, φιάλες, υγραερίου, σιδηροκατασκευές, κλπ) έξω από οποιοδήποτε κατάστημα ΚΥΕ ως επίσης απαγορεύεται η τοποθέτηση κάθε είδους εμπορευμάτων ή άλλων αντικειμένων έξω από οποιοδήποτε εμπορικό κατάστημα, πλήν των εξαιρέσεων που προαναφέρθηκαν.
- Προ της εισόδου πολυκατοικιών ή κατοικιών, δεν επιτρέπεται σε καμία περίπτωση η ανάπτυξη τραπεζοκαθισμάτων ή εμπορευμάτων κάθε είδους όπως και η προέκταση ανεμοφρακτών που αποκρύπτουν την είσοδο, ακόμα κι αν οι ιδιοκτήτες της πολυκατοικίας το επιτρέπουν.
- Απαγορεύεται η αποθήκευση τραπεζοκαθισμάτων και λοιπών στοιχείων εξοπλισμού επί των κοινοχρήστων χώρων.
- Απαγορεύεται η τοποθέτηση φωτιστικών σωμάτων πάσης φύσεως επί των πλατειών και των πεζοδρόμων όπως και σε κάθε κοινόχρηστο χώρο που δεν έχει παραχωρηθεί, πλην αυτού που έχει εγκατασταθεί κατά την κατασκευή αυτών.
- Απαγορεύεται η τοποθέτηση και η χρήση μεγαφωνικών εγκαταστάσεων, διαφημιστικών στοιχείων οποιασδήποτε μορφής και είδους σε κοινόχρηστους χώρους. Οι ηχητικές εγκαταστάσεις πρέπει να είναι τοποθετημένες εντός των καταστημάτων ( Υγειονομική Διάταξη ΥΓ. Α5/3010/85) .
- Οι καταστηματάρχες θα έχουν την αποκλειστική ευθύνη για την αυθαίρετη κατάληψη χώρου από πελάτες των καταστημάτων τους, πέραν του χώρου που τους έχει παραχωρηθεί και έχει οριοθετηθεί.
- Απαγορεύεται η καταστροφή, η φθορά ή η κοπή δέντρων, φυτών, λουλουδιών και γενικά πρασίνου που βρίσκεται σε πλατείες, νησίδες, πεζοδρόμια και λοιπούς κοινόχρηστους χώρους. Το πρόστιμο ορίζεται στα διακόσια (200) ευρώ, επιπλέον του εκτιμώμενου κόστους της ζημιάς που προκλήθηκε και θα βεβαιώνεται στο κατάστημα στο οποίο έχει παραχωρηθεί η χρήση του κοινόχρηστου χώρου όπου συντελέστηκε η φθορά.
- Οι καταστηματάρχες που χρησιμοποιούν τους κοινόχρηστους χώρους για ανάπτυξη τραπεζοκαθισμάτων οφείλουν να τους διατηρούν καθαρούς. Δεν πρέπει να υπάρχουν ανθυγιεινές εστίες, ούτε δυσμενείς παράγοντες και κίνδυνοι για ατυχήματα τόσο στον κοινόχρηστο όσο και στον περιβάλλοντα χώρο.
- Ύστερα από αίτηση φορέων διοργανωτών και εφόσον τηρούνται οι νόμιμες προϋποθέσεις οι πεζόδρομοι και οι πλατείες ή τμήματα αυτών μπορούν να παραχωρούνται με έκδοση σχετικής άδειας, για την οργάνωση πολιτιστικών εκδηλώσεων, με υποχρέωση των φορέων διοργανωτών για την εξασφάλιση της καθαριότητας, την προστασία τους από κάθε είδους ρύπανση και την αποκατάσταση τυχόν ζημιών. Ο έλεγχος της τήρησης των ορίων της σχετικής άδειας θα είναι αρμοδιότητα του τμήματος ελέγχου κοινοχρήστων χώρων της Διεύθυνσης Διαχείρισης Προσόδων και Δημοτικής Περιουσίας.
- Οι καταστηματάρχες υποχρεούνται να αποσύρουν με δική τους φροντίδα τα τραπεζοκαθίσματα και να παραχωρούν στον Δήμο τους κοινόχρηστους χώρους (πλατείες, πεζόδρομους), για την διοργάνωση εκδηλώσεων που γίνονται υπό την αιγίδα του Δήμου. Σε αυτή την περίπτωση ειδοποιούνται αρμοδίως από τον Δήμο πέντε (5) ημέρες πριν την τέλεση της εκδήλωσης.
- Τα τμήματα κοινοχρήστων χώρων όπου επιτρέπεται η παραχώρηση χρήσης, καθορίζονται με την παρούσα κανονιστική απόφαση και ορίζεται τιμή ανά τετραγωνικό μέτρο (τ.μ.) παραχωρούμενου χώρου, σύμφωνα με την αντίστοιχη απόφαση του Δημοτικού Συμβουλίου περί καθορισμού τελών κατάληψης κοινοχρήστου χώρου ανεξάρτητα από την διάρκεια χρήσης αυτού.
- Στα ΚΥΕ η χρήση κοινόχρηστου χώρου πρέπει να περιλαμβάνεται στην γνωστοποίηση της άδειας λειτουργίας σύμφωνα με την ισχύουσα Υγειονομική Νομοθεσία. Τονίζεται ότι σε καμία περίπτωση η ανωτέρω δυνατότητα δεν αποτελεί άδεια κατάληψης κοινόχρηστου χώρου, την οποία ο καταστηματάρχης θα πρέπει να εφοδιαστεί πριν την κατάληψη, διαφορετικά θα υποστεί τις προβλεπόμενες εκ του νόμου συνέπειες.
- Το τέλος είναι ετήσιο καταβάλλεται ολόκληρο και έχει ισχύ μέχρι 31 Δεκεμβρίου του έτους που εκδόθηκε η άδεια, ανεξάρτητα από τον χρόνο έκδοσης της. Για τέλη που ξεπερνούν το ποσό των 300 € μπορεί να δίνεται προκαταβολή του 30% και το υπολειπόμενο ποσό να μοιράζεται σε 3 ισόποσες δόσεις. Η εκπρόθεσμη καταβολή ή η μη καταβολή έστω και μιας εκ των δόσεων, συνεπάγεται αυτοδίκαια χωρίς να απαιτείται άλλη διατύπωση, ανάκληση της άδειας και αυθαίρετη χρήση του κοινόχρηστου χώρου εκ μέρους του υπόχρεου. Τυχόν ήδη καταβληθείσες δόσεις δεν επιστρέφονται.
- Σε περίπτωση αναστολής της λειτουργίας του κοινόχρηστου χώρου για λόγους ανωτέρας βίας, επιστρέφεται το καταβληθέν ποσό του χρονικού διαστήματος για το οποίο ανεστάλη η άδεια κοινόχρηστου χώρου (άρθρο 3 παρ7του ν. 1080/80).
- Η αίτηση έκδοσης της άδειας πρέπει να γίνεται μέσα στο πρώτο τρίμηνο του τρέχοντος έτους. Στην άδεια θα αναγράφεται ο αριθμός του διπλότυπου είσπραξης του ανάλογου τέλους και αυτή θα έχει ισχύ μέχρι την 31 Δεκεμβρίου του έτους για το οποίο εκδόθηκε. Προϋπόθεση της χορήγησης άδειας χρήσης κοινόχρηστου χώρου από τους Δήμους είναι η σύμφωνα με το άρθρο 285 του Ν. 3463/2006 «η μη ύπαρξη σε βάρος του ενδιαφερομένου βεβαιωμένων ληξιπρόθεσμων οφειλών προς αυτούς, με εξαίρεση τις περιπτώσεις εκκρεμοδικίας και του διακανονισμού καταβολής αυτών σύμφωνα με την σχετική νομοθεσία». Όσον αφορά τα καταστήματα που θα ανοίξουν μετά το Μάρτιο θα αιτηθούν της χορήγησης άδειας πριν την χρήση του κοινόχρηστου χώρου.
- Ειδικά για το 2025 και μετά την έγκριση της παρούσας κανονιστικής απόφασης, όσοι επαγγελματίες ζητήσουν επιπλέον κοινόχρηστο χώρο σύμφωνα με τις νέες διατάξεις μπορούν να αιτηθούν της έκδοσης αδείας.
Τα στοιχεία σκίασης και προστασίας από την βροχή διακρίνονται αποκλειστικά σε ομπρέλες και τέντες επιτοίχιες ή κάθετες χωρίς ρίχτι, οι οποίες θα είναι μονόχρωμες ή ριγέ στις αποχρώσεις του εκρού-μπέζ ή του γκρί, με τους παρακάτω όρους:
- Η μέγιστη επιφάνεια που μπορούν να καλύπτουν οι ομπρέλες θα είναι ίση με την επιφάνεια του παραχωρούμενου κοινόχρηστου χώρου και 50 πόντους επιπλέον περιμετρικά. Δεν θα φέρουν επιγραφές ή διαφημίσεις στην εξωτερική τους πλευρά πλην της επωνυμίας και του σήματος του καταστήματος στο ρίχτι. Θα πακτώνονται σε κινητό σύστημα στήριξης και όχι στο έδαφος ώστε να εξασφαλίζεται η δυνατότητα απομάκρυνσης τους όταν αυτό απαιτείται. Θα τοποθετούνται με τέτοιο τρόπο ώστε να μην εμποδίζονται οι είσοδοι των κτιρίων και η ανάπτυξη των δέντρων. Το μέγιστο ύψος του στύλου δεν θα υπερβαίνει τα 3,50μ ενώ ελάχιστο ελεύθερο ύψος του ριχτιού του υφάσματος θα είναι 2,20μ. Οι ομπρέλες θα διαθέτουν ένα μόνο κατακόρυφο στοιχείο στήριξης στο έδαφος και μηχανισμό που επιτρέπει το κλείσιμό τους. Το χρώμα τους θα είναι ίδιο με το χρώμα των τεντών του καταστήματος στο οποίο ανήκουν. Για κάθε διαπίστωση υπέρβασης των ανωτέρω θα επιβάλλεται καταρχήν πρόστιμο διακόσια (200) € ανά τεμάχιο ή τρέχων μέτρο και υποχρέωση άμεσης συμμόρφωσης εντός 7 ημερών. Σε περίπτωση μη συμμόρφωσης το πρόστιμο θα διπλασιάζεται και θα αφαιρείται η άδεια κατάληψης κοινοχρήστου χώρου για ένα (1) μήνα ή σφράγιση του καταστήματος από μια (1) έως δέκα (10) ημέρες.
- Η τοποθέτηση τεντών στην όψη του κτιρίου, θα είναι σε ύψος από το έδαφος το ελάχιστο 3,00 μ , χωρίς κατακόρυφα στηρίγματα ή στοιχεία πρόσθετου υφάσματος εκτός του ριχτιού ενώ το ελάχιστο ελεύθερο ύψος του ριχτιού θα είναι 2,20μ. Το άνοιγμα τους θα καλύπτει τον παραχωρούμενο χώρο και μισό μέτρο επιπλέον αυτού ενώ δεν επιτρέπεται να έχουν διαφημιστικά μηνύματα στην εξωτερική πλευρά τους παρά μόνον την επωνυμία του καταστήματος ή το σήμα του καταστήματος στο ρίχτι (Απόφαση Α.Π. 52716/20-11-01 της Γεν. Δ/νσης Πολεοδομίας, Δ/νση Ο.Κ.Κ του ΥΠΕΧΩΔΕ ΦΕΚ 1663/Β/2001). Για κάθε διαπίστωση υπέρβασης των ανωτέρω θα επιβάλλεται καταρχήν πρόστιμο διακόσια (200) € ανά τεμάχιο ή τρέχων μέτρο και υποχρέωση άμεσης συμμόρφωσης εντός 7 ημερών. Σε περίπτωση μη συμμόρφωσης το πρόστιμο θα διπλασιάζεται και θα αφαιρείται η άδεια κατάληψης κοινοχρήστου χώρου για ένα (1) μήνα ή σφράγιση του καταστήματος από μια (1) έως δέκα (10) ημέρες.
- Απαγορεύεται η ύπαρξη οποιουδήποτε εμποδίου ( κάθετες τέντες, πτυσσόμενες πόρτες, ανεμοφράκτες κλπ) που περιορίζει την ελεύθερη ζώνη όδευσης των πεζών, είτε πρόκειται για πεζοδρόμια είτε πρόκειται για πεζοδρόμους. Η μη πλήρωση των ανωτέρω προϋποθέσεων συνιστούν παραβάσεις των όρων της παραχώρησης και το πρόστιμο ορίζεται σε (100) € ανά τρέχον μέτρο κατασκευής, και υποχρέωση άμεσης συμμόρφωσης εντός 7 ημερών. Σε περίπτωση μη συμμόρφωσης ή νέας παράβασης το πρόστιμο θα διπλασιάζεται και θα ανακαλείται η άδεια κατάληψης κοινοχρήστου χώρου για (1) μήνα ή θα σφραγίζεται το κατάστημα από μια (1) έως δέκα (10) ημέρες.
- Η υποχρέωση όλων καταστημάτων να διατηρούν καθαρές τις τέντες, τις ομπρέλες και τα σκιάδια είναι δεδομένη και ενισχύει την εικόνα της πόλης μας, ως επίσης αποτελεί υποχρέωση των καταστηματαρχών η αντικατάσταση των ανωτέρω όταν σε αυτά διαπιστώνονται εμφανή σημεία φθοράς. Σε έλεγχο της υπηρεσίας που θα διαπιστωθούν έντονα σημεία φθοράς στις τέντες, ομπρέλες και σκιάδια θα επιβάλλεται καταρχήν πρόστιμο εκατό (100) € ανά τεμάχιο και υποχρέωση άμεσης συμμόρφωσης εντός τριμήνου.
- Για την σκίαση των ΚΥΕ που προβάλουν στις στοές επιτρέπεται η τοποθέτηση κάθετων μέσων σκίασης χωρίς ρίχτι με αναγραφόμενη την επωνυμία της επιχείρησης στην μια γωνία τους εντός κι εκτός. Τα σκίαστρα αυτά θα τοποθετούνται στο μέσον της κολώνας και η πλήρης ανάπτυξή τους θα γίνεται μέχρι του ύψους του 1,90 μ. από το δάπεδο του πεζοδρομίου.
- Η προσαρμογή των τεντών, ομπρελών και σκιαδίων των καταστημάτων στα επιτρεπόμενα χρώματα, δύναται να γίνει εντός διετίας από την έγκριση του παρόντος κανονισμού.
Η τοποθέτησή των ανεμοφρακτών επιτρέπεται εφόσον τοποθετούνται περιμετρικά και εντός του χώρου παραχώρησης, αφήνοντας πάντα τη μία πλευρά ελεύθερη. Οι τρόποι στήριξης που επιτρέπονται είναι τρείς:
α) Θα έχουν μεταλλική βάση με ρόδες και φρένο για την σταθεροποίησή τους ή
β) Θα έχουν βιδωμένα σημεία στήριξης εντός του παραχωρημένου χώρου ή
γ) Θα έχουν στοιχεία φύτευσης στην βάση τους.
Το πλαίσιο τους θα είναι μεταλλικό και τα διάφανα στοιχεία τους θα είναι από άθραυστο υλικό, το ύψος τους θα είναι έως 1,70 μ. και το μήκος κάθε στοιχείου από 1,00 έως 1,50μ. Η συνένωση των ανεμοφρακτών επιτρέπεται διότι ενισχύει την ασφάλεια τοποθέτησης τους. Ανάμεσα στα καταστήματα στην περίπτωση που αυτά γειτνιάζουν θα υπάρχει κενό και σαφής διάκριση διάταξης. Δεν επιτρέπεται άλλη κατασκευή που θα λειτουργεί συμπληρωματικά με τους ανεμοφράκτες όπως πλαστικές ή υφασμάτινες τέντες, μεταλλικές κατασκευές κλπ, δημιουργώντας περίκλειστους χώρους. Οι ανεμοφράκτες θα έχουν τα ανωτέρω χαρακτηριστικά είτε πρόκειται για την τοποθέτησή τους σε πεζόδρομο, είτε σε πεζοδρόμια είτε σε πλατείες. Ειδικά στις πλατείες απαγορεύεται η δημιουργία περίκλειστων χώρων με χρησιμοποίηση οποιουδήποτε άλλου υλικού πλην των ανεμοφρακτών. Οι παραχωρούμενοι χώροι των πλατειών είναι κοινόχρηστοι χώροι που παραχωρήθηκαν για να ενισχύσουν την οικονομική κατάσταση των καταστημάτων κυρίως κατά τους θερινούς μήνες και όχι για να δημιουργηθούν εκεί σταθερές κατασκευές για τους χειμερινούς μήνες, προεκτείνοντας την πλήρη επαγγελματική δραστηριότητα εκτός καταστήματος. Η τοποθέτηση ανεμοφρακτών επί των πλατειών επιτρέπεται μόνον εφόσον έχει αδειοδοτηθεί ο χώρος για ανάπτυξη τραπεζοκαθισμάτων. Υποχρεωτικά τοποθετούνται περιμετρικά εντός του χώρου παραχώρησης, αφήνοντας πάντα ελεύθερη ολόκληρη τη μία πλευρά τους και σκιάζονται από ομπρέλες χωρίς πρόσθετα μέσα σκίασης ή προστασίας από τον άνεμο και την βροχή.
Για κάθε περίκλειστη κατασκευή επί των πλατειών ισχύουν οι διατάξεις του Άρθρου 1 παρ. 10 Κεφ.Α του παρόντος Κανονισμού καθώς και η κοινοποίηση στην αρμόδια Δ/νση Πολεοδομίας .
Για κάθε παράνομη πάκτωση οποιουδήποτε αντικειμένου ισχύουν οι διατάξεις του Άρθρου 1 παρ.15 Κεφ.Α του παρόντος Κανονισμού καθώς και η κοινοποίηση στην αρμόδια Δ/νση Πολεοδομίας.
Η τοποθέτηση των ανεμοφρακτών απαγορεύεται στους χώρους των στοών ( παραχωρημένων ή μη ).
Οι ζαρτινιέρες, πρέπει να είναι κατασκευασμένες από καλής ποιότητας και υψηλής αντοχής υλικά. Πρέπει να διατηρούνται πάντα σε άριστη κατάσταση και να τοποθετούνται μόνο εντός του παραχωρημένου χώρου, να μην έχουν επιγραφές η διαφημίσεις και να έχουν ενιαία στοιχεία φύτευσης ανά κατάστημα και μέγιστο ύψος φύτευσης 0,50 εκατοστά του μέτρου.
Η φροντίδα των φυτών, η συντήρηση τους ή η αντικατάσταση των ζαρντινιερών σε περίπτωση φθοράς αποτελούν υποχρέωση του ιδιοκτήτη της επιχείρησης που τις τοποθέτησε. Ειδικά στο ιστορικό κέντρο δεν επιτρέπεται να είναι πλαστικές και σε έντονους χρωματισμούς.
Η χωροθέτηση των ζαρντινιερών στον κοινόχρηστο χώρο, όταν πρόκειται για κατάστημα υγειονομικού ενδιαφέροντος, γίνεται εντός του εγκεκριμένου χώρου ανάπτυξης τραπεζοκαθισμάτων. Σε καμιά περίπτωση δεν επιτρέπεται να περιφράσσουν το χώρο, δημιουργώντας περιχαρακωμένες περιοχές, μετατρέποντας τον κοινόχρηστο χώρο σε ιδιωτικό.
Τα θερμαντικά – ψυκτικά σώματα που τοποθετούνται στον παραχωρηθέντα προς χρήση κοινόχρηστο χώρο θα πρέπει να φέρουν πιστοποίηση ασφαλούς λειτουργίας σύμφωνα με τα διεθνή πρότυπα ασφαλείας αντοχής και προστασίας (ΙΡ 65 ή υψηλότερο), να συντηρούνται σωστά με ευθύνη του καταστηματάρχη, ο οποίος θα είναι και ο έχων την απόλυτη ευθύνη για την λειτουργία τους. Σε καμία περίπτωση δεν μπορούν να φέρουν επιγραφές ή διαφημίσεις και υποχρεωτικά θα αποσύρονται από τους παραχωρημένους κοινόχρηστους χώρους, τους μήνες που δεν είναι αναγκαία η χρήση τους.
Απαγορεύεται η τοποθέτηση θερμαντικών – ψυκτικών σωμάτων σε επαφή με δένδρα ή θάμνους ως επίσης και η διατήρηση σπασμένων ζαρντινιέρων ή γλαστρών. Σε αντίθετη περίπτωση θα επιβάλλεται πρόστιμο 100 € ανά τεμάχιο και εάν μετά την επιβολή του προστίμου διαπιστωθεί η διατήρηση της ανωτέρω τοποθέτησης, τα θερμαντικά σώματα θα αποσυνδέονται και απομακρύνονται - χωρίς καμία ευθύνη του Δήμου για οποιαδήποτε ζημιά ή βλάβη από δημοτικό συνεργείο, προκειμένου να απελευθερωθεί ο κοινόχρηστος χώρος και θα επιστρέφονται, αφού καταβληθεί πρόστιμο μεταφοράς και αποθήκευσης πενήντα (50,00) ευρώ για κάθε τεμάχιο.
- Σε πεζόδρομους με καθαρή επιφάνεια πεζοδρόμου εκτός των επιφανειών των πεζοδρομίων και των σταθερών σημείων οδοφωτισμού, κάτω των 2,50 μ. όπως, Ασκληπιού (2,15 μ.), Δρακοπούλου 2,20μ.), Βούρβαχη ( 2,16μ. ) και Παπαρρηγοπούλου (2,08μ) επιτρέπεται η τοποθέτηση πάσο στον τοίχο του καταστήματος και σκαμπό, έτσι ώστε να μένει ελεύθερη η λωρίδα διέλευσης πεζών πλάτους 1,50 μ.
- Σε πεζόδρομους με καθαρή επιφάνεια πεζοδρόμου από 2,50 μ. μέχρι 3,00μ. όπως η Πουκεβίλ και η Ραδινού εκτός των επιφανειών των πεζοδρομίων που επιτρέπεται πάσο με σκαμπό επιτρέπεται η ανάπτυξη μιας σειράς τραπεζοκάθισματων στον πεζόδρομο, μετά από αυτοψία της υπηρεσίας και διαγράμμιση, τα οποία θα τοποθετούνται κάθετα στο πεζοδρόμιο με τα καθίσματα ή τα σκαμπό αριστερά και δεξιά του τραπεζιού υπό την προϋπόθεση της εξασφάλισης ελεύθερου διάδρομου 1,50 μ για την εξυπηρέτηση των πεζών. Όπου υπάρχουν αντικρυστά καταστήματα ο χώρος θα μοιράζεται ισομερώς εξασφαλίζοντας πάντα την ελεύθερη όδευση πεζών πλάτους τουλάχιστον 1,50μ.
Στον πεζόδρομο της Ηφαίστου ο οποίος δεν έχει πεζοδρόμια και το πλάτος του σε κάποια σημεία είναι λιγότερο από 4 μ, επιτρέπεται η ανάπτυξη μιας σειράς τραπεζοκαθισμάτων όπου δύναται ή πάσο με σκαμπό επί της πρόσοψης του ΚΥΕ, μετά από αυτοψία της υπηρεσίας και διαγράμμιση, υπό την προϋπόθεση εξασφάλισης σε ευθεία γραμμή ελεύθερου συνεχόμενου διαδρόμου διέλευσης πεζών και οχημάτων έκτακτης ανάγκης, πλάτους 3,00 μ.
Όπου υπάρχουν αντικρυστά καταστήματα ο χώρος θα μοιράζεται ισομερώς υπό την προϋπόθεση της εξασφάλισης ελεύθερου συνεχόμενου διαδρόμου διέλευσης πεζών και οχημάτων έκτακτης ανάγκης, πλάτους 3,00 μ.
- Πεζόδρομος Παρθενάκου από Μαιζώνος έως Κορίνθου πλάτους περίπου 4,60μ, επιτρέπεται η ανάπτυξη μιας σειράς τραπεζοκαθισμάτων ή πάσο με σκαμπό στο παλιό πεζοδρόμιο και μιας σειράς τραπεζοκαθισμάτων ή πάσο με σκαμπό στον πεζόδρομο, τα οποία θα τοποθετούνται κάθετα στο πεζοδρόμιο με τα καθίσματα ή τα σκαμπό αριστερά και δεξιά του τραπεζιού, υπό την προϋπόθεση εξασφάλισης σε ευθεία γραμμή ελεύθερου συνεχόμενου διαδρόμου διέλευσης πεζών και οχημάτων έκτακτης ανάγκης, πλάτους 3,00 μ.
- Πεζόδρομος Παντανάσσης πλάτους περίπου 4,50μ, επιτρέπεται η ανάπτυξη μιας σειράς τραπεζοκαθισμάτων ή πάσο με σκαμπό στο παλιό πεζοδρόμιο και μιας σειράς στον πεζόδρομο τα οποία θα τοποθετούνται κάθετα στο πεζοδρόμιο με τα καθίσματα ή τα σκαμπό αριστερά και δεξιά του τραπεζιού, υπό την προϋπόθεση εξασφάλισης σε ευθεία γραμμή ελεύθερου συνεχόμενου διαδρόμου διέλευσης πεζών και οχημάτων έκτακτης ανάγκης, στο κέντρο του πεζοδρόμου, πλάτους 3,00 μ.
- Πεζόδρομος Κανάρη πλάτους περίπου 5,00μ επιτρέπεται η ανάπτυξη μιας σειράς τραπεζοκαθισμάτων ή πάσο με σκαμπό στο παλιό πεζοδρόμιο και μιας σειράς στον πεζόδρομο τα οποία θα τοποθετούνται κάθετα στο πεζοδρόμιο με τα καθίσματα ή τα σκαμπό αριστερά και δεξιά του τραπεζιού, υπό την προϋπόθεση εξασφάλισης σε ευθεία γραμμή ελεύθερου συνεχόμενου διαδρόμου διέλευσης πεζών και οχημάτων έκτακτης ανάγκης, στο κέντρο του πεζοδρόμου, πλάτους 3,00 μ.
- Πεζόδρομος Γεροκωστοπούλου, εξακολουθεί να ισχύει ότι και στο παρελθόν, η παραχώρηση γίνεται αυστηρά μέχρι την πρώτη διακεκομμένη μαρμάρινη γραμμή στο πλακόστρωτο , υπό την προϋπόθεση εξασφάλισης σε ευθεία γραμμή ελεύθερου συνεχόμενου διαδρόμου διέλευσης πεζών και οχημάτων έκτακτης ανάγκης, στο κέντρο του πεζοδρόμου, πλάτους 3,00 μ. Το ίδιο θα ισχύει και μετά την ανάπλαση του πάνω μέρους της οδού μέχρι τις σκάλες.
- Πεζόδρομος Ρήγα Φεραίου πλάτους περίπου 5,10-5,90 ο οποίος διατηρεί την δική του κανονιστική για την χρήση των στοών πάντα υπό την προϋπόθεση της εξασφάλισης σε ευθεία γραμμή ελεύθερου συνεχόμενου διαδρόμου 1,50 μ. για την ελεύθερη διέλευση των πεζών και την εξασφάλιση της προσβασιμότητας των ατόμων με αναπηρία και των εμποδιζόμενων ατόμων. Επιτρέπεται στον πεζόδρομο η τοποθέτηση τραπεζοκαθισμάτων ή πάσο με σκαμπό τα οποία θα τοποθετούνται κάθετα στο πεζοδρόμιο με τα καθίσματα ή τα σκαμπό αριστερά και δεξιά του τραπεζιού. Το πλάτος της παραχώρησης στον πεζόδρομο θα είναι τέτοιο ώστε να εξασφαλίζεται συνεχόμενος ελεύθερος διαδρόμος διέλευσης πεζών και οχημάτων έκτακτης ανάγκης, στο κέντρο του πεζοδρόμου, πλάτους 3,00 μ.
Στους πεζόδρομους αυτής της κατηγορίας λόγω της μεγάλης επισκεψιμότητας τους θα εξασφαλίζεται σε ευθεία γραμμή συνεχόμενος ελεύθερος διάδρομος για την διέλευση πεζών και οχημάτων έκτακτης ανάγκης, πλάτους τουλάχιστον 4,00 μ. Τέτοιοι είναι οι παρακάτω πεζόδρομοι και ανά πεζόδρομο επιτρέπονται τα εξής:
- Πεζόδρομος Αγίου Νικολάου πλάτους περίπου 11 μ. Επιτρέπεται μεταξύ των κολωνών μόνο για τοποθέτηση τραπεζοκαθισμάτων ή πάσο με σκαμπό και επί του πεζοδρόμου για την τοποθέτηση τραπεζοκαθισμάτων και μόνο στην προβολή του κάθε ΚΥΕ, μέχρι την ερυθρά μαρμάρινη γραμμή ή μέχρι το πλαίσιο των δέντρων στο κομμάτι από Μαιζώνος μέχρι Κορίνθου, όπου πρόκειται για την προέκταση της ερυθράς μαρμάρινης γραμμής του κάτω τμήματος.
- Πεζόδρομος Μαιζώνος πλάτουςπερίπου 8 μ, επιτρέπεται η παραχώρηση σε όλο το παλαιό πεζοδρόμιο στην προβολή του ΚΥΕ .
Πεζόδρομος Τριών Ναυάρχων, η παραχώρηση επιτρέπεται στον χώρο επί της προβολής του κάθε ΚΥΕ, αφού μείνει ελεύθερο το 0,50 εκατέρωθεν από τον διάδρομο όδευσης τυφλών καθώς και μια σειρά τραπεζοκαθίσματα στον χώρο απέναντι από την προβολή του κάθε ΚΥΕ κατά μήκος του κεντρικού παρτεριού και αυστηρά στο μέρος της προβολής του. Στα καταστήματα που δεν προβάλουν σε παρτέρι θα δίνεται άδεια για ανάπτυξη τραπεζοκαθισμάτων μετά από χωροθέτηση του Τμήματος Εσόδων, αφού αξιολογηθεί η δυνατότητα παραχώρησης.
Στα καταστήματα ΚΥΕ που δραστηριοποιούνται στους πεζοδρόμους η άδεια θα δίδεται αφού ληφθούν υπόψη οι ιδιαιτερότητες του συγκεκριμένου σημείου του πεζοδρόμου, ο αστικός εξοπλισμός του σημείου και η γενική αίσθηση του χώρου.
Για την χορήγηση των αδειών κατάληψης κοινοχρήστου χώρου οι ενδιαφερόμενοι υποβάλλουν τα εξής δικαιολογητικά:
- Αίτηση-Υπεύθυνη δήλωση ότι έχουν λάβει γνώση του παρόντος κανονισμού και ότι θα τον τηρούν.
- Άδεια λειτουργίας του καταστήματος
- Δηλώσεις δημοτικού φόρου που τυχόν δεν έχουν υποβάλλει από την έναρξη λειτουργίας του καταστήματος μέχρι την ημέρα της αίτησης.
- Κάτοψη υπογεγραμμένη και σφραγισμένη από ιδιώτη Μηχανικό σε κλίμακα 1:50 του προτεινόμενου προς κατάληψη κοινόχρηστου χώρου και πέριξ αυτού, στον οποίο θα απεικονίζονται κάθε είδους φυσικά ή τεχνικά στοιχεία που περικλείονται στον χώρο αυτό και που θα συνεκτιμούνται για την τελική χορήγηση της άδειας κατάληψης του κοινόχρηστου χώρου, όπως παγκάκια, πινακίδες σήμανσης, δένδρα, είσοδοι κτιρίων κλπ. Στα σχέδια θα αποτυπώνεται ο αιτούμενος χώρος για την κατάληψη, με ακριβείς συντεταγμένες ΕΓΣΑ 87.
- Φωτογραφίες του προς κατάληψη κοινόχρηστου χώρου και του περιβάλλοντος χώρου του καταστήματος.
- Υ.Δ. Εγκαταστάτη ηλεκτρολόγου σε περίπτωση που έχει επεκτείνει την ηλεκτρολογική εγκατάσταση του καταστήματος σε δημοπρατούμενο χώρο.
Για την παραχώρηση του δικαιώματος χρήσης κοινόχρηστου χώρου, πέραν αυτού που καταλαμβάνει η κατασκευή του κουβουκλίου σύμφωνα με τον Κανονισμό Λειτουργίας Περιπτέρων (απόφαση ΔΣ 48/2022 του Δήμου Πατρέων), εφαρμόζονται οι διατάξεις του άρθρου 3 του ν.1080/1980, όπως εκάστοτε ισχύουν. Σύμφωνα το άρθρο 76 του Ν.4257/2014 (ΦΕΚ τ’. Α΄/93/14.04.2014), οι υφιστάμενες διοικητικές άδειες διατηρούνται σε ισχύ. Από 1.1.2014 οι δικαιούχοι αυτών υπόκειντο σε υποχρέωση καταβολής τέλους για τον κοινόχρηστο χώρο που καταλαμβάνει η κατασκευή του περιπτέρου. Με την παρούσα ο συνολικός χώρος που θα παραχωρείται στα περίπτερα για την ανάπτυξη της εμπορικής τους δραστηριότητας συμπεριλαμβανομένων των διαδρόμων κίνησης πελατών, ψυγείων παγωτών- νερών- αναψυκτικών, σταντ κλπ, δεν μπορεί να ξεπερνά
α) στις πλατείες μέχρι 25 τ.μ. συμπεριλαμβανομένου του κουβουκλίου κι εφόσον το επιτρέπουν οι συνθήκες του σημείου εγκατάστασης ως προς τον χώρο διέλευσης τυφλών, ράμπες ΑΜεΑ, χώρο πρασίνου, διαδρόμους εισόδου της πλατείας και εν γένη την συνολική εικόνα του σημείου εγκατάστασης,
γ) στους πεζόδρομους μέχρι 20 τ.μ. συμπεριλαμβανομένου του κουβουκλίου κιεφόσον το επιτρέπουν οι συνθήκες του σημείου εγκατάστασης ως προς τον χώρο διέλευσης τυφλών, ράμπες ΑΜεΑ, ελεύθερος χώρος για την κίνηση των πεζών τουλάχιστον 1,5 μ. και εν γένη την συνολική εικόνα του σημείου εγκατάστασης.
Ο παραχωρούμενος χώρος θα οριοθετηθεί με διαγράμμιση από το Τμήμα Ελέγχου Κοινοχρήστων Χώρων και θα αφαιρεθεί από την χρέωση των συνολικών τ.μ. η επιφάνεια της νόμιμη εγκατάστασης του κουβουκλίου.
Επιτρέπεται η τοποθέτηση τέντας με στήριξη πάνω στο περίπτερο αλλά και κατακόρυφα στηρίγματα που στερεώνονται στο έδαφος προκειμένου να διασφαλιστεί η ασφάλεια των πεζών. Για την κατασκευή στήριξης της τέντας απαιτείται υπεύθυνη δήλωση από τον ιδιοκτήτη για την στατικότητα της κατασκευής στήριξης. Απαγορεύεται η δημιουργία περίκλειστου χώρου με διάφανες τέντες ή κατασκευές οποιουδήποτε άλλου είδους πέριξ του περιπτέρου. Μόνο στις περιπτώσεις έντονων καιρικών φαινομένων (καύσωνας και ανεμόβροχο) επιτρέπεται η προστασία των ευπαθών προϊόντων με τέντα ενός σημείου.
Τα περίπτερα που βρίσκονται στο ιστορικό κέντρο της Πάτρας πρέπει να έχουν αποκλειστικά μονόχρωμες ή ριγέ τέντες στις αποχρώσεις των εκρού - μπέζ ή γκρί και δεν επιτρέπεται η αναγραφή σε αυτές οποιουδήποτε διαφημιστικού μηνύματος στην εξωτερική επιφάνεια τους. Η συνολική επιφάνεια της τέντας, μπορεί να ξεπερνά τον παραχωρούμενο κοινόχρηστο χώρο μέχρι 50 πόντους σε όλες τις πλευρές, για την προστασία των προϊόντων από τις καιρικές συνθήκες. Ο παραχωρούμενος κοινόχρηστος χώρος προορίζεται αποκλειστικά για την τοποθέτηση μέχρι πέντε ψυγείων πώλησης αναψυκτικών, νερών, ροφημάτων και παγωτών καθώς και τριών σταντ καλής κατασκευής για την τοποθέτηση εφημερίδων περιοδικών και προϊόντων, με την προϋπόθεση ότι δεν υποβαθμίζουν την αισθητική των κοινοχρήστων χώρων.
Με την αίτηση κατάληψης του κοινόχρηστου χώρου θα υποβάλλονται έκτος των άλλων δικαιολογητικών, φωτογραφίες περιμετρικά του περιπτέρου καθώς και κάτοψη υπογεγραμμένη και σφραγισμένη από ιδιώτη Μηχανικό σε κλίμακα 1:50 με ακριβείς συντεταγμένες ΕΓΣΑ 87, του προτεινόμενου προς κατάληψη κοινόχρηστου χώρου και πέριξ αυτού, στον οποίο θα απεικονίζονται κάθε είδους φυσικά ή τεχνικά στοιχεία που περικλείονται στον χώρο αυτό και που θα συνεκτιμούνται για την τελική χορήγηση της άδειας κατάληψης του κοινόχρηστου χώρου, όπως παγκάκια, πινακίδες σήμανσης, δένδρα, είσοδοι κτιρίων κλπ. Σην κάτοψη θα αποτυπώνεται η διάταξη και η εμβαδομέτρηση όλων των στοιχείων ( κουβούκλιο, ψυγεία σταντ).
Οι εκμεταλλευτές περιπτέρων υποχρεούνται να φροντίζουν για την καθαριότητα του παραχωρούμενου, του περιβάλλοντος χώρου και όλων επιφανειών του κουβουκλίου και του εξοπλισμού τους. Επίσης οφείλουν να φροντίζουν για την αποκομιδή των απορριμμάτων που δημιουργεί η πελατεία τους και να διατηρούν εντός του παραχωρημένου χώρου καλαίσθητους μη διαφημιστικούς κάδους αποκομιδής. Επίσης πρέπει να μεριμνούν για την πώληση /διακίνηση του τοπικού τύπου, συμβάλλοντας στην προβολή της τοπικής δημοσιογραφίας και των ειδήσεων της ευρύτερης περιοχής.
Δεν επιτρέπονται στον παραχωρούμενο κοινόχρηστο χώρο των περιπτέρων καθίσματα, ζαρντινιέρες, άδεια κιβώτια, καφάσια, άδειες συσκευασίες προϊόντων όπως και αποθήκευσή αυτών, καθώς επίσης απαγορεύεται η τοποθέτηση οποιουδήποτε άλλου υλικού μπορεί να καταλάβει τον παραχωρούμενο χώρο πλην των επιτρεπόμενων.
Η συνολική παρέμβαση στον περιβάλλοντα χώρο και οποιαδήποτε μεταβολή θα έχει την έγκριση των υπηρεσιών του Δήμου.
Ο στόχος του παρόντος κανονισμού είναι η αναβάθμιση της εικόνας των περιπτέρων και των κοινόχρηστων χώρων του Δήμου μας όπως και η ασφάλεια της προστασίας των πεζών συμπεριλαμβανομένων των ατόμων με αναπηρία (ΑΜεΑ).
Ο κανονισμός λειτουργίας των περιπτέρων συμπληρώνεται με τα άρθρα αρμοδιότητας της Διεύθυνσης Τοπικής Οικονομίας που έχει την ευθύνη χορήγησης άδειας λειτουργίας τους. Από την εν λόγω Διεύθυνση θα καθοριστούν οι προδιαγραφές των διαφημιστικών πινακίδων που θα επιτρέπονται να έχουν τα περίπτερα και τα τέλη διαφήμισης που θα υποχρεούνται να καταβάλλουν στο Δήμο.
Για την εκτέλεση δημόσιων ή ιδιωτικών έργων (άρθρα 47 & 48 του Ν.2696/99), ορίζεται ημερήσιο τέλος ανά τ.μ για την κατάληψη. Ο ιδιοκτήτης ή ο εργολάβος μετά από αίτησή τους στο Δήμο Πατρέων λαμβάνουν άδεια κατάληψης του κοινόχρηστου χώρου, για κατάληψη πεζοδρομίου, πεζοδρόμου, ή οδοστρώματος μετά από έγκριση της Αστυνομίας.
Για την έκδοση των ανωτέρω αδειών θα πρέπει να υποβάλλεται από τον αιτούντα σχέδιο διαχείρισης των απορριπτέων οικοδομικών υλικών, και του εξοπλισμού που αντικαθίσταται, υποβάλλοντας υπεύθυνη δήλωση στην οποία: α) θα δηλώνει τον τρόπο που θα διαχειριστεί τα μπάζα που θα προκύψουν μετά τις εργασίες που θα εκτελέσει β) θα βεβαιώνει ότι δεν θα εγκαταλειφθούν μπάζα ή άλλος εξοπλισμός σε κοινόχρηστο χώρο ή σε κάδο απορριμμάτων.
Οι υπεύθυνοι του έργου είναι υποχρεωμένοι να λάβουν όλα τα απαραίτητα μέτρα για την πρόληψη ατυχήματος και μη διασποράς των υλικών Τα ελαφριά υλικά που παρασύρονται από τον αέρα πρέπει να καλύπτονται ή να καταβρέχονται για να μην δημιουργούν ρύπανση στο περιβάλλον. Ο χώρος κατάληψης θα πρέπει να έχει σημανθεί κατάλληλα ώστε να είναι ορατός & τη νύκτα. Σε περίπτωση κατάληψης ολόκληρου του πεζοδρομίου, υποχρεούνται να πάρουν κατάλληλα μέτρα για την ασφαλή διέλευση των πεζών.
Δεν επιτρέπεται η τοποθέτηση οικοδομικών υλικών σε παραχωρούμενους κοινόχρηστους χώρους εφόσον δεν εξασφαλίζεται η ασφαλής διέλευση πεζών και οχημάτων (ΥΑ 6952/16-3-2011 ΦΕΚ 420/Β΄/16-3-11).
Για τους παραβάτες η υπηρεσία θα βεβαιώνει πρόστιμο εις βάρος του υπεύθυνου έργου ή του ιδιοκτήτη του ακινήτου στο οποίο έγιναν οποιασδήποτε μορφής τεχνικές εργασίες και δεν αποκατέστησαν τον δημόσιο χώρο μέσω της αποκομιδής των μπαζών, απορριμμάτων κλπ που δημιουργήθηκαν από την επισκευή (Κανονισμός Καθαριότητας).
Οι άδειες που εκδίδονται διακρίνονται σε :
α)Άδεια χρήσης προστατευτικής περίφραξης, µε πανί, λαμαρίνα ή πλέγμα με την επίβλεψη του αρμόδιου μηχανικού και ημερήσιο τέλος χρήσης.
Κατά την κατεδάφιση, ανέγερση ή επισκευή οικοδομής θα περιφράσσεται υποχρεωτικά ο προ αυτής χώρος σε απόσταση 1,50 µ από την οικοδομική γραμμή & σε ύψος 2,50 από την στάθμη της οδού µε ανθεκτικό & αδιαπέραστο υλικό για την αποφυγή κινδύνου διασποράς, διαρροής ή διαφυγής στο περιβάλλον δομικών, αδρανών υλικών & αποβλήτων. Τα αναγκαία προστατευτικά μετρά π.χ είδος προστατευτικού υλικού, καθορίζονται από τον επιβλέποντα τις εργασίες μηχανικό και ελέγχονται από το Σώμα Επιθεωρητών Εργασίας. Δεν επιτρέπεται η απόρριψη κάθε είδους υλικών έξω από το περίφραγμα αυτό. Όλες οι πραγματοποιούμενες εργασίες πρέπει να εκτελούνται μετά την λήψη νόμιμης άδειας από τον Δήμο για κατάληψη κοινόχρηστου χώρου η οποία θα πρέπει να αναρτάται στον χώρο του εργοταξίου μαζί µε αντίγραφο της θεωρημένης οικοδομικής άδειας & της προβλεπόμενης από τον νόμο πινακίδας µε τον αριθμό της άδειας & την ημερομηνία της έκδοσης της.
β)Άδεια τοποθέτησης ικριώματος, µε ημερήσιο τέλος χρήσης.
Ο ενδιαφερόμενος καταθέτει τη σχετική έγκριση ή άδεια της Υπηρεσία Δόμησης & υποχρεώνεται (σε κάθε περίπτωση τηρώντας τις Πρότυπες Τεχνικές Προδιαγραφές Εργασιών, τους κανονισμούς & τις διατάξεις ασφαλείας):
• Να κατασκευάσει προστατευτικό προστέγασμα ή στοά µε σκάφη (όταν γίνεται χρήση ολόκληρου πεζοδρομίου), για την προστασία των διερχόμενων πεζών από πιθανή πτώση αντικειμένων.
• Να τοποθετήσει το ικρίωμα (σκαλωσιά) µε ασφαλή έδραση & στήριξη στην οικοδομή.
• Να κατασκευάσει το ικρίωμα (σκαλωσιά) µε προστατευτική διάταξη (πανί, δίχτυ κ.τ.λ.) για την προστασία των διερχόμενων πεζών από πτώση υλικών.
• Να τοποθετήσει σήμανση που να προειδοποιεί έγκαιρα τους πεζούς για την κατάληψη του πεζοδρομίου.
• Να τοποθετήσει ταινία σήμανσης µε ερυθρό & λευκό χρώμα.
• Να τοποθετήσει εμπόδια µε φώτα & αντανακλαστικά στοιχεία που να λειτουργούν σε όλο το 24ωρο & ιδίως υπό συνθήκες νύχτας.
γ) Άδεια κατάληψης κοινόχρηστου χώρου, για την εκτέλεση διαφόρων τεχνικών εργασιών-ιδιωτικών έργων με ημερήσιο τέλος π.χ. κατάληψη ανυψωτικού μηχανήματος, αντλίας μπετόν, μηχανής σοβατίσματος, τοποθέτηση κάδου οικοδομικών υλικών κλπ.
Οικονομικά υπόχρεοι είναι ο ιδιοκτήτης του ακινήτου ή ο επιβλέπων μηχανικός. Οποιαδήποτε καταστροφή κοινόχρηστου χώρου αποκαθίστανται από τον ιδιοκτήτη ή τον εργολάβο των εργασιών.
Ειδικά στις περιπτώσεις παραχώρησης άδειας για τοποθέτηση κάδων, απαραίτητη προϋπόθεση είναι η τοποθέτησή τους πάνω σε ξύλο, έτσι ώστε να μην καταστρέφεται το πεζοδρόμιο ή το οδόστρωμα κλπ.
Β) Χορήγηση άδειας για κατάληψη κοινοχρήστου χώρου για Εγκαίνια
Θα παραχωρείται χώρος πεζοδρομίου ή μέρος πεζοδρόμου για πραγματοποίηση εγκαινίων μετά από έγκριση της Τροχαίας, με την προϋπόθεση να μη δημιουργηθεί πρόβλημα τόσο σε όμορους ιδιοκτήτες καταστημάτων όσο και στην απρόσκοπτη κυκλοφορία πεζών και οχημάτων.
Για καταστήματα, συλλόγους, ενώσεις κλπ που θέλουν να κάνουν προβολή των προϊόντων τους θα παραχωρείται χώρος ανά τμ, μετά από αίτησή τους, σε σημεία που δεν θα ενοχλείται η ελεύθερη διέλευση των πεζών αλλά και η λειτουργία όμορων καταστημάτων.
Για όλα τα παραπάνω η τιμή τέλους καθορίζεται με την κατ΄ έτος απόφαση τελών του Δημοτικού Συμβουλίου για την κατάληψη κοινόχρηστων χώρων.
Δ) Ατελώς
Οι πεζόδρομοι και οι πλατείες παραχωρούνται δωρεάν για βραχυχρόνιο διάστημα προκειμένου να φιλοξενήσουν πολιτιστικές εκδηλώσεις, ομιλίες κομμάτων, ενώσεων ή οργανώσεων που δεν έχουν κερδοσκοπικούς σκοπούς και δεν διενεργούν εμπορική διαφήμιση.
Η έγκαιρη υποβολή αίτησης για την έκδοση και ανανέωση των αναγκαίων αδειών αποτελεί ευθύνη του υπευθύνου του καταστήματος. Οι άδειες που θα χορηγηθούν από τον Δήμο οφείλουν να τηρούνται στο κατάστημα ή στον χώρο για τον οποίο εκδόθηκαν προκειμένου να επιδεικνύονται κατά τη διενέργεια ελέγχου από τα αρμόδια όργανα.
Σύμφωνα με το άρθρο 50 του Νόμου 4257/14 (ΦΕΚ 93/14.04.2014 Τεύχος Α’) που τροποποίησε το άρθρο 3 του Νόμου 1080/1980 σε περίπτωση που διαπιστώνεται αυθαίρετη κατάληψη κοινόχρηστου χώρου, επιβάλλεται σε βάρος του παραβάτη εκτός από το αναλογούν τέλος και πρόστιμο ( Ν. 5143/2024 άρθρο 31) για τα τ.μ. της κατάληψης με την τιμή που έχει καθοριστεί από την σχετική απόφαση του ΔΣ.
Στις περιπτώσεις αυτές συντάσσεται έκθεση ελέγχου το αντίγραφο της οποίας παραδίδεται στον καταστηματάρχη και παράλληλα δίνεται εντολή να άρει την αυθαίρετη κατάληψη εντός επτά (7) ημερών από την επομένη της επίδοσης της εντολής άρσης της αυθαίρετης κατάληψης. Η έκθεση διαβιβάζεται στην πολεοδομία για τις δικές της ενέργειες σε περιπτώσεις παραβάσεων που εμπίπτουν στην αρμοδιότητά της. Σε περίπτωση μη συμμόρφωσης τα εν λόγω αντικείμενα απομακρύνονται άμεσα από συνεργείο του δήμου, ο οποίος μπορεί να ζητήσει, προς τον σκοπό αυτόν, την άμεση συνδρομή των Αστυνομικών Αρχών. Τα αντικείμενα που αφαιρούνται καταγράφονται σε ειδική έκθεση, η οποία υπογράφεται από τον επικεφαλής του συνεργείου του δήμου που τα απομακρύνει και δεν επιστρέφονται αν προηγουμένως δεν καταβληθεί ειδικό πρόστιμο για τα έξοδα μεταφοράς και αποθηκεύσεως αυτών, το οποίο καθορίζεται από την ετήσια απόφαση τελών του Τμήματός Εσόδων. Για κάθε διαπίστωση τέτοιων παραβάσεων στα ΚΥΕ, θα επιβάλλεται πρόστιμο ίσο με το διπλάσιο του μεγαλύτερου κατά τετραγωνικό μέτρο ποσού που καθορίστηκε με την απόφαση του ΔΣ ή σφράγιση από 1-10 ημέρες (άρθρο 31του Ν. 5143/2024).
Για τα υπόλοιπα καταστήματα που αδειοδοτούνται για χρήση κοινόχρηστου χώρου όπως οπωροπωλεία, ανθοπωλεία, οπωροπαντοπωλεία (και μόνο για τα οπωροκηπευτικά είδη), βιολογικά προϊόντα κλπ αν μετά την παρέλευση επτά (7) ημερών από την επομένη της επίδοσης της εντολής άρσης της αυθαίρετης κατάληψης, και ανεξάρτητα αν έχουν απομακρυνθεί ή όχι από τον δήμο τα εν λόγω αντικείμενα, διαπιστωθεί δεύτερη παράβαση, αφαιρείται η άδεια χρήσης κοινόχρηστου χώρου για χρονικό διάστημα έξι (6) μηνών.
Σε περίπτωση διαπίστωσης ρύπανσης των χώρων που αφορά ο παρών κανονισμός, στους παραβάτες θα επιβάλλονται οι προβλεπόμενες από την ισχύουσα κάθε φορά νομοθεσία, ποινές, (αρθ. 26 παρ. 9 Ν 1828/3.1.89) (Ν. 1650/86 αρθ. 30) και τις διατάξεις περί καθαριότητας κοινοχρήστων χώρων του ισχύοντα Κανονισμού Καθαριότητας του Δήμου.
Για κάθε προξενούμενη ζημιά στους πεζοδρόμους – πλατείες, στα διάφορα στοιχεία τους και στον αστικό εξοπλισμό, θα συντάσσεται εκ πρώτης έκθεση επιβολής προστίμου ύψους 200€ από την αρμόδια υπηρεσία του Δήμου, το οποίο θα καταλογίζεται και θα βεβαιώνεται σε βάρος του υπαιτίου. Ακολούθως θα αποστέλλεται στην αρμόδια τεχνική υπηρεσία για να συνταχθεί το σχετικό πρωτόκολλο εκτίμησης της ζημιάς, το δε ποσό αυτής θα καταλογίζεται και θα βεβαιώνεται σε βάρος του υπαιτίου.
Η ουσιαστική παραβίαση των όρων της χορηγούμενης άδειας καθώς και η αλλαγή της χρήσης της, τιμωρείται με την ανάκληση της αδείας.
Για όλες τις παραβάσεις έχουν παράλληλη εφαρμογή και οι αντίστοιχες διατάξεις του ΚΟΚ και των σχετικών Νόμων και διατάξεων.
Οποιαδήποτε αυθαίρετη κατάληψη κοινοχρήστου χώρου που δεν πληροί τις προϋποθέσεις της ανωτέρω κανονιστικής απόφασης απαγορεύεται. Στις περιπτώσεις που διαπιστωθεί κατόπιν ελέγχου η αυθαίρετη κατάληψη κοινοχρήστου χώρου με κινητά πράγματα όπως ζαρντινιέρες, σόμπες, ανεμοφράκτες, πάγκους σερβιρίσματος, σταντ, καναπέδες, φωτιστικά, ράφια με περιοδικά ή βιβλία ή ρούχα ή άλλα εμπορεύματα κ.λ.π, επιβάλλεται πρόστιμο 100 € ανα τεμάχιο ή ανα τρέχων μέτρο.
- Στα καταστήματα που έχουν προβολή στις πλατείες : Γεωργίου Α΄, Πλ. Εθνικής Αντίστασης, Πλ. Τριών Συμμάχων, Πλ. Υψηλών Αλωνίων, Πλ. Ομονοίας, Πλ. Καποδιστρίου, Πλ, Αγίου Γεωργίου, θα λαμβάνουν άδεια κατάληψης κοινοχρήστου χώρου για τα δημοπρατούμενα τμήματα αυτών. Για τις περιπτώσεις που στο μέλλον δημιουργηθεί ανάγκη να δημοπρατηθούν τμήματα πλατειών μετά από αναμορφώσεις ή αναπλάσεις που δεν προβλέπονται από τον παρόντα Κανονισμό , δύναται να χωροθετηθούν από την Δ/νση Αρχιτεκτονικού Έργου – Η/Μ και να δημοπρατηθούν με την διαδικασία που εκ του νόμου προβλέπεται.
- Στα υπό δημοπράτηση τμήματα της παρ 1 δικαίωμα συμμετοχής έχουν και τα όμορα ή παρόδια καταστήματα που πληρούν τους όρους και τις προϋποθέσεις συμμετοχής στη δημοπρασία.
- Για τα καταστήματα που δραστηριοποιούνται σε όλες τις άλλες πλατείες του Δήμου Πατρέων, δύναται να χορηγηθεί άδεια ανάπτυξης τραπεζοκαθισμάτων εφόσον υπάρξει ενδιαφέρον, τόσο στα καταστήματα που έχουν προβολή επ΄ αυτών όσο και σε αυτά που δεν έχουν προβολή, κατόπιν χωροθέτησης των αντίστοιχων κοινοχρήστων τμημάτων από την Υπηρεσία Εσόδων, η οποία αφού λάβει υπόψη της την διασφάλιση των ελεύθερων ζωνών για την διέλευση των πεζών και ΑΜΕΑ, τα σταθερά στοιχεία του αστικού εξοπλισμού και τις ιδιαιτερότητες των χώρων, θα αποφασίζει για την αδειοδότηση.
- Οι προβολές των δρόμων και των στοών επί των πλατειών, δημοπρατούνται όταν δεν αποτελούν λειτουργικό στοιχείο της πλατείας (περίπτερο, διέλευση κλπ.)
- Οι είσοδοι πολυκατοικιών, στην προβολή τους επί της πλατείας, διανέμονται εξίσου στα ενδιαφερόμενα όμορα καταστήματα εφόσον υπάρχει ενδιαφέρον . Οι είσοδοι μονοκατοικιών, στην προβολή τους επί της πλατείας, διανέμονται εξίσου στο ή στα παράπλευρα καταστήματα που έχουν προβολή επ’ αυτής, εφόσον υπάρχει ενδιαφέρον, εκτός μεμονωμένων περιπτώσεων ακινήτων που χρήζουν ειδικής αντιμετώπισης και θα αξιολογούνται από το Τμήμα Εσόδων ανά περίπτωση.
Σε όλους τους κοινόχρηστους χώρους καθώς και επί του κάθε είδους οδικού και αστικού εξοπλισμού, απαγορεύεται η τοποθέτηση εμπορικών διαφημιστικών πλαισίων όπως πινακίδων, αφισών, μπανερς, (banners) πανό, ή η ρίψη φεϊγβολάν κλπ. Οι χώροι ανάπτυξης διαφημίσεων θα καθορίζονται από την αντίστοιχη κανονιστική απόφαση του Δήμου και θα αναρτώνται στους χώρους που αυτή ορίζει. Για κάθε αυθαίρετη διαφημιστική - εμπορική ανάρτηση με αφίσες, πανό, μπάνερς, αεροπανό, θα γίνεται αποξήλωση από τις υπηρεσίες του Δήμου και επιβολή των αντίστοιχων προστίμων στους διοργανωτές των διαφημιζόμενων καταστημάτων, εμπορικών διαφημιστικών εταιρειών, συλλόγων, ιδιωτών κλπ.
Τα παραπάνω με τα γενικά και ειδικά ζητήματα του κεφαλαίου αυτού θα αναλυθούν στην κανονιστική του Δήμου Πατρέων για την διαφήμιση σύμφωνα με τις διατάξεις της σχετικής νομοθεσίας.
Για τις περιπτώσεις παράνομων καταλήψεων στον αστικό εξοπλισμό εφαρμόζεται καταρχήν το άρθρο 22 «Ρύπανση από Διαφημίσεις» του Κανονισμού Καθαριότητας του Δήμου Πατρέων (Αρ. Αποφ. Δ.Σ. 258/2008), όπως εγκρίθηκε με την υπ’ αριθμ. πρωτ. 35113/8394/16-05-2008 απόφαση το Γενικού Γραμματέα Περιφέρειας Δυτικής Ελλάδας). Απαγορεύεται η τοποθέτηση κάθε είδους διαφημιστικών - εμπορικών πινακίδων όπως αφισών ή σημάτων ανακοινώσεων, ενοικιαστηρίων, αναγγελιών τελετών σε κοινόχρηστους ή ιδιωτικούς χώρους (δρόμους, κολώνες στοών, πλατείες, πεζοδρόμια, στάσεις λεωφορείων, περιφράξεις, δέντρων, προσόψεις και τοίχους οικοδομών, εντός κήπων ή οικοπέδων, κάδων απορριμμάτων κλπ.). Επιτρέπεται μόνο σε ειδικούς χώρους και με τις προδιαγραφές που ορίζει η Διεύθυνση Τοπικής Οικονομίας και μόνον κατόπιν αδείας της, με υποχρέωση απόσυρσης του διαφημιστικού μέσου εντός 3 ημερών μετά τη διεξαγωγή του διαφημιστικού γεγονότος από τον διαφημιστή ή τον διαφημιζόμενο.
Η ρύπανση συντελεί στην υποβάθμιση της αισθητικής και στην αποδόμηση της ιστορικής και πολιτιστικής ταυτότητας της πόλης μας. Τόσο η ρύπανση όσο και η φθορά του αστικού εξοπλισμού, αποτελούν παραβάσεις και επισύρουν πρόστιμα τα οποία σύμφωνα με τον ισχύοντα κανονισμό καθαριότητας κυμαίνονται από 150-1500 ευρώ και συγκεκριμένα
- Πρόστιμο 150 € ανά τεμάχιο για ρύπανση με εμπορικές πινακίδες, διαφημιστικές πινακίδες, πινακίδες προβολής εκδηλώσεων, αφίσες, μπάνερ, αυτοκόλλητα κλπ ιδιωτικών φορέων, πλην των φορέων του δημοσίου και των κομμάτων.
- Πρόστιμο 300 € για αυθαίρετη ρίψη εμπορικών διαφημιστικών φειγ-βολάν και εντύπων.
- Πρόστιμο 150 € ανά τεμάχιο για ρύπανση εμπορικών διαφημίσεων με αεροπανό.
- Πρόστιμο 300€ ανά τεμάχιο για εγκατάλειψη εμπορικών διαφημιστικών πινακίδων, πανό και γιγαντοαφισών εμπορικών ή διαφημιστικών δραστηριοτήτων, μετά την παρέλευση του γεγονότος για το οποίο είχαν αναρτηθεί.
- Πρόστιμο από 150-1500 για την ρύπανση μνημείων, δημόσιων κτηρίων ή δημόσιων χώρων ( αρ. 12 του Κανονισμού Καθαριότητας .
Οι ρύποι όπως αναφέρονται ανωτέρω απομακρύνονται άμεσα, κατά τις σχετικές διατάξεις του οικείου κανονισμού καθαριότητας, με ευθύνη του Δήμου, χωρίς να απαιτείται η έκδοση απόφασης απομάκρυνσης κατά τα οριζόμενα στην παρ. 1 του άρθρου 9 του Ν. 2946/2001.
Για ότι ανωτέρω περιγράφεται ως ρύπος επιβάλλεται πρόστιμο σύμφωνα με την ισχύουσα κάθε φορά κανονιστική απόφαση του Δήμου Πατρέων, σε βάρος των διαφημιστών που τοποθέτησαν χωρίς άδεια, των διαφημιζομένων ή του κυρίου, νομέα ή επικαρπωτή του χώρου στον οποίο γίνεται η διαφήμιση.
Για την ελεύθερη διακίνηση των πολιτικών ιδεών μέσω εκδηλώσεων, ανοικτών ομιλιών, πολιτικών συγκεντρώσεων καθ΄ όλη την διάρκεια του έτους, παραχωρούνται ατελώς κοινόχρηστοι χώροι ύστερα από σχετική αίτηση του εκάστοτε πολιτικού φορέα Η άδεια χορηγείται υπό την προϋπόθεση της παράδοσης του χώρου στην κατάσταση που παραλήφθηκε.
Ειδικά εν όψει εκλογών (βουλευτικών, ευρωβουλευτικών, δημοτικών, περιφερειακών, δημοψηφισμάτων κλπ) διατίθενται κοινόχρηστοι χώροι ατελώς, ύστερα από αίτηση των πολιτικών φορέων για την προεκλογική προβολή τους, σύμφωνα με την εκάστοτε απόφαση του Δημοτικού Συμβουλίου, για τον καθορισμό του τρόπου χρήσης των υπόψη χώρων, για τις εκλογικές διαδικασίες.
Η παραχώρηση χώρου για την ανάπτυξη τραπεζοκαθισμάτων γίνεται σύμφωνα με το εγκεκριμένο σχέδιο. Τοποθετούνται τραπεζοκαθίσματα στις προβολές των καταστημάτων ενώ δημοπρατούνται και τμήματα της πλατείας.
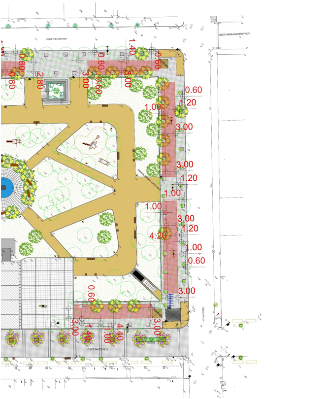
ΣΧΕΔΙΟ 1 Β
ΠΛΗΡΕΣ ΣΧΕΔΙΟ ΠΛΑΤΕΙΑΣ ΓΕΩΡΓΙΟΥ
Τοποθετούνται τραπεζοκαθίσματα στις προβολές των καταστημάτων και δημοπρατούνται τμήματα της πλατείας. Επίσης ειδικά από το Ν.Δ. τμήμα της πλατείας (μπαλκόνι), επιφάνειας 848,29τ.μ. δημοπρατούνται στα ακραία τμήματά του δύο χώροι επιφάνειας 310,48τ.μ. για την ανάπτυξη τραπεζοκαθισμάτων
Τοποθετούνται τραπεζοκαθίσματα στις προβολές των καταστημάτων ενώ δημοπρατούνται οι χώροι στις ειδικές αρχιτεκτονικές κατασκευές επιφάνειας 12τ.μ έκαστη και αφού πρώτα διαπιστωθεί η απομάκρυνση οποιαδήποτε αυθαίρετης παρέμβασης ή κατασκευής καθώς και η αποκατάσταση φθορών και ζημιών από τους τελικούς πλειοδότες σύμφωνα με τα εγκεκριμένα σχέδια.
Επισημαίνεται ότι οι τέντες που τυχόν υφίστανται περιμετρικά των ειδικών αρχιτεκτονικών κατασκευών νομίμως θα χρησιμοποιούνται αποκλειστικά για σκίαση και όχι για ανάπτυξη τραπεζοκαθισμάτων.
Τα τραπεζοκαθίσματα τοποθετούνται στις προβολές των καταστημάτων και σε επιφάνειες όπως αυτές αποτυπώνονται λεπτομερώς στα αντίστοιχα εγκεκριμένα σχέδια.
Τα τραπεζοκαθίσματα τοποθετούνται στις προβολές των καταστημάτων σύμφωνα με το εγκεκριμένο σχέδιο.
Τα τραπεζοκαθίσματα τοποθετούνται στις προβολές των καταστημάτων σύμφωνα με το εγκεκριμένο σχέδιο και δημοπρατείται το τμήμα Εμβαδού 30,35 τ.μ.
Ο χώρος ανάπτυξης τραπεζοκαθισμάτων είναι στην προβολή του κάθε καταστήματος
Ο χώρος ανάπτυξης τραπεζοκαθισμάτων είναι στην προβολή του κάθε καταστήματος επί της πλατείας.
Ο χώρος ανάπτυξης τραπεζοκαθισμάτων είναι στην προβολή του κάθε καταστήματος επί της πλατείας.
Ο χώρος ανάπτυξης τραπεζοκαθισμάτων είναι στην προβολή του κάθε καταστήματος επί της πλατείας
ΣΧΕΔΙΟ 9 – 2
Ο χώρος ανάπτυξης τραπεζοκαθισμάτων είναι στην προβολή του κάθε καταστήματος επί της πλατείας.
1. Η ισχύς του παρόντος κανονισμού αρχίζει από την επόμενη της έγκρισης του από τα αρμόδια όργανα της Αποκεντρωμένης Διοίκησης και της δημοσίευσης αυτού όπως ο νόμος ορίζει.
2. Η παρούσα απόφαση θα αναπροσαρμόζεται σύμφωνα με τα εκάστοτε εκδιδόμενα διατάγματα χρήσεων γης.
3. Κάθε άλλη απόφαση το περιεχόμενο της οποίας ολόκληρο ή τμήμα δεν ενσωματώνεται και αφορά στην λειτουργία των αναφερόμενων πεζόδρομων, πλατειών, πεζοδρομίων κλπ. παύει να ισχύει με την έγκριση του παρόντος κανονισμού.
4. Ο ανωτέρω κανονισμός θα δημοσιευτεί μια φορά σε μία τοπική εφημερίδα.
5. Για την τήρηση του παρόντα κανονισμού υπεύθυνη είναι η ΕΛ.ΑΣ., οι αρμόδιες υπηρεσίες του Δήμου, οι επαγγελματίες και οι πολίτες.
6. Η τήρηση του παρόντος κανονισμού επαφίεται στην ευσυνειδησία των πολιτών και των ενδιαφερομένων επαγγελματιών.
7. Για το όποιο θέμα δεν υπάρχει πρόβλεψη στον παρόντα κανονισμό, αποφασίζει το Δημοτικό Συμβούλιο αφού έχει λάβει υπόψη του τις σχετικές διατάξεις του νόμου.
8. Είναι δυνατή η τροποποίηση του παρόντος κανονισμού όταν συντρέχουν λόγοι όπως π.χ. τροποποίηση νομοθετικού πλαισίου, δημιουργία νέων λειτουργικών αναγκών κλπ.
Καταργούμενες διατάξεις
Με την παρούσα καταργείται η απόφαση 302/2013 του Δημοτικού Συμβουλίου που αφορούσε την συναίνεση του Δήμου Πατρέων στην διαδικασία νομιμοποίησης-ρύθμισης των στεγάστρων που είχαν κατασκευαστεί και ήδη έχουν απομακρυνθεί προ της ανάπλασης της πλατείας Εθνικής Αντιστάσεως και τα οποία δεν δύναται να επανατοποθετηθούν.
ΑΚΡΟΤΕΛΕΥΤΙΟ ΑΡΘΡΟ
Η τήρηση των κανονισμών λειτουργίας της πόλης μας είναι υπόθεση όλων μας. Η δημιουργία των υποδομών είναι ευθύνη του Δήμου ο οποίος έχει παράλληλα την υποχρέωση να προασπίζει το δημόσιο συμφέρον, αφενός με τον καθορισμό των κανόνων και αφετέρου με τον έλεγχο της εφαρμογής τους, δημιουργώντας έτσι ένα ελκυστικό περιβάλλον που θα προσκαλεί τους πολίτες να το απολαύσουν, ενισχύοντας την ανθρώπινη επαφή και επικοινωνία, αναπτύσσοντας το αστικό περιβάλλον σε αρμόνια με το φυσικό, ενδυναμώνοντας την αγορά με κανόνες και προϋποθέσεις και καλλιεργώντας συνθήκες σεβασμού, ειρηνικής συνύπαρξης και συνυπευθυνότητας. Η υποχρέωση των πολιτών από την άλλη είναι να συνδράμουν στην προσπάθεια του Δήμου, να σεβαστούν και να προστατεύσουν τους δημόσιους χώρους, να αλληλοσεβαστούν συμμετέχοντας ενεργά σε αυτή την κοινή προσπάθεια και να αναγνωρίσουν το δικαίωμα όλων μας στην χρήση τους.
Η αναπληρώτρια Δ/ΤΡΙΑ
ΔΙΑΧΕΙΡΙΣΗΣ ΠΡΟΣΟΔΩΝ
& ΔΗΜΟΤΙΚΗΣ ΠΕΡΙΟΥΣΙΑΣ
ΝΙΚΗ ΞΕΝΟΥ
Ο ΑΝΤΙΔΗΜΑΡΧΟΣ ΔΙΟΙΚΗΣΗΣ ΚΑΙ ΔΗΜ. ΚΑΤΑΣΤΑΣΗΣ,
ΟΙΚΟΝΟΜΙΚΩΝ, ΔΙΑΧ/ΣΗΣ ΠΡΟΣΟΔΩΝ, ΤΟΠ.ΟΙΚΟΝΟΜΙΑΣ,
ΚΕΝΤΡΩΝ ΕΞΥΠΗΡΕΤΗΣΗΣ ΠΟΛΙΤΩΝ ΝΟΜΙΚΗΣ ΥΠΗΡΕΣΙΑΣ & ΕΣΩΤΕΡΙΚΟΥ ΕΛΕΓΧΟΥ
ΠΛΕΣΣΑΣ ΔΙΟΝΥΣΗΣ